Properties 642 of 2724 results« Previous property   Next property »

7 Byram Meadows Rd, Chappaqua, NY, 10514 $1,500,000

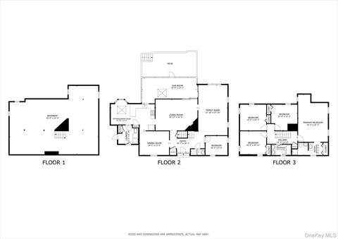
Single Family For Sale 4 Beds , 2 Full Bath , 1 Half Bath , 2891 SqFt 

Property Picture
1 of 32
 
 

Details ML#: 919705  

  • Style: Colonial
  • Year Built: 1978
  • Taxes: $25,040
  • Status:Active

Description

Welcome to this beautifully maintained home featuring a spacious 476 sq ft sunroom with direct access from both the living room and family room—ideal for year-round enjoyment. Recent updates include a new roof (2023), new central air unit (2022), and all new water and heating systems in the basement, offering peace of mind and modern efficiency. The family room boasts a classic wood-burning fireplace, perfect for cozy evenings. Enjoy a formal dining room and an eat-in kitchen, great for everyday living and entertaining. A generous deck overlooks a large backyard, providing ample space for outdoor relaxation. Conveniently located near Metro-North and the towns of Chappaqua and Armonk, this home blends comfort, convenience, and charm.

More Property Details

Room Information

Bedroom: 4   Full Bath: 2   Half Bath: 1  

Property Features

ConstructionMaterials: Garden, Gas Grill, Lighting, Mailbox   Lot Size: 0.92   Lot Sq Ft: 40075   Approx. Int. Sq. Ft.: 2891.00   Garage: Yes   Garage: 2.0   Parking Spaces: Yes   Parking Facilities: Attached, Driveway, Garage, Garage Door Opener, Private   Deck: Yes   Porch Description: Yes  

Appliances & Utilities

Heat: Baseboard, Hot Water, Oil   A/C: Central Air   Water: Well   Sewer: Septic Tank  

Financial

Taxes: $25,040  

Local Area Information

School District: Wampus  

Listing Information provided courtesy of Redfin Real Estate  631-337-8238
Inquire About This Property

(*) - Required fields

  1. Presented by

    Gold Coast Homes & Estates
    • Gold Coast Homes & Estates
    • Licensed Real Estate Broker
    • (631) 283-1000
    •   Contact Us
OneKey™ MLSThe source of the displayed data is either the property owner or public record provided by non-governmental third parties. It is believed to be reliable but not guaranteed. Information Copyright 2020, OneKey™ MLS
© 2025 Gold Coast Homes & Estates. All rights reserved | Login | DMCA Notice | Search Engine powered by eRealtyMedia.com