Properties 11122 of 29563 results« Previous property   Next property »

58 Sudbury Lane, Westbury, NY, 11590 $759,000

Single Family For Sale 4 Beds , 2 Full Bath , 1842 SqFt 

Property Picture
1 of 25
 
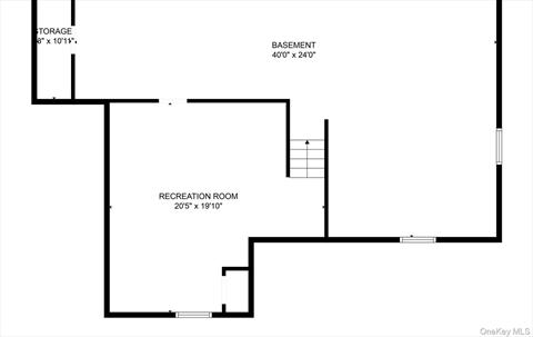
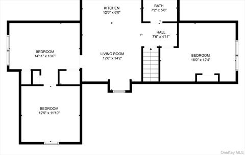
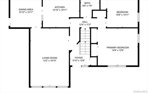
Front of Structure Front of Structure Living Room Living Room Dining Area Dining Area Kitchen Kitchen Bedroom Bedroom Bathroom Entry Entry Bedroom Bonus Room Living Room Bathroom Bonus Room Basement Basement Patio Yard Floor Plan Floor Plan Floor Plan
 

Details ML#: 915760  

  • Style: Exp Cape
  • Year Built: 1957
  • Taxes: $14,221
  • Status:Active

Description

Welcome to Glen Cove! This spacious and expanded Cape, nestled on a quiet residential street in the desirable Village of Westbury, offers abundant living space, character, and convenience. Bright and airy throughout, the home features original hardwood floors, classic moldings, and a warm, inviting layout that blends charm with functionality.The home includes a partially finished basement, offering extra space for recreation, a home office, or storage, with plenty of potential to tailor it to your needs. Outside, enjoy a private backyard and patio—ideal for relaxing, entertaining, or gardening.Conveniently located near shopping, restaurants, public transportation, and just minutes from the Long Island Expressway and major parkways, this home provides easy access to everything you need while maintaining a peaceful, suburban setting.With its expanded layout the property may offer flexible living arrangements pending proper permits. Buyers are encouraged to explore the possibility of re-establishing a layout similar to a mother/daughter style setup, in accordance with local regulations.Don’t miss this opportunity to own a versatile and charming home in one of Westbury’s most sought-after neighborhoods!

More Property Details

Room Information

Bedroom: 4   Full Bath: 2   Other: 3  

Property Features

Lot Size: 0.1942   Lot Sq Ft: 8460   Approx. Int. Sq. Ft.: 1842.00   Garage: Yes   Garage: 2.0   Parking Spaces: Yes   Parking Facilities: Driveway, Garage   Porch Description: Yes  

Appliances & Utilities

Heat: Oil   A/C: Wall/Window Unit(s)   Water: Public   Sewer: Public Sewer  

Financial

Taxes: $14,221  

Local Area Information

School District: Powells Lane School  

Listing Information provided courtesy of Branch Real Estate Group  516-671-4400
Inquire About This Property

(*) - Required fields

  1. Presented by

    Gold Coast Homes & Estates
    • Gold Coast Homes & Estates
    • Licensed Real Estate Broker
    • (631) 283-1000
    •   Contact Us
OneKey™ MLSThe source of the displayed data is either the property owner or public record provided by non-governmental third parties. It is believed to be reliable but not guaranteed. Information Copyright 2020, OneKey™ MLS
© 2025 Gold Coast Homes & Estates. All rights reserved | Login | DMCA Notice | Search Engine powered by eRealtyMedia.com