Properties 1134 of 28730 results« Previous property   Next property »

36 Revolutionary Rd, Briarcliff Manor, NY, 10510 $3,300,000

Single Family For Sale 5 Beds , 5 Full Bath , 2 Half Bath , 7931 SqFt 

Property Picture
1 of 50
 
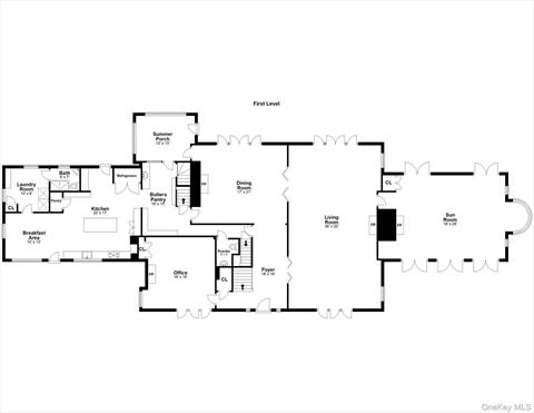
Aerial View Front of Structure Front of Structure Pool Other Kitchen Kitchen Kitchen Kitchen Kitchen Dining Room Dining Room Dining Area Living Room Sun Room Family Room Family Room Living Room Living Room Office Office Bedroom Primary Bedroom Primary Bedroom Primary Bathroom Primary Bathroom Sun Room Bedroom Bathroom Sun Room Bedroom Bathroom Bedroom Entry Aerial View Aerial View Garden Out Buildings Out Buildings Sun Room Patio Pool Aerial View Floor Plan Floor Plan Floor Plan Floor Plan Floor Plan Floor Plan Back of Structure
 

Details ML#: 886779  

  • Style: Estate
  • Year Built: 1916
  • Taxes: $73,207
  • Status:Active

Description

The Essence of Westchester Luxury. A Grand Briarcliff Manor Estate Nestled on 3.83 Private Acres. Perfectly positioned between the Hudson River and Sleepy Hollow Country Club. World-class dining, shopping and Metro North train are nearby, blending convenience with serene privacy. The stately home boasts five spacious ensuite bedrooms, including a spectacular primary suite with a cozy fireplace, a luxurious updated bathroom and an expansive walk-in dressing room. Enjoy direct access to a private sleeping porch - an idyllic retreat for relaxation. The heart of the home is the chef-inspired kitchen, complete with a spacious butler’s pantry, ideal for hosting and culinary creativity. The grand formal dining room with fireplace, adorned with a wall of French doors and bespoke Zuber wallpaper panels offer a setting that is as sophisticated as it is inviting. Step into the grand foyer, the perfect introduction to the beauty and tranquility of the home. The main level features a private, wood-paneled office with a fireplace and French doors leading to the expansive front porch, offering a tranquil work-from-home experience. The light-filled living room impresses with double walls of French doors at both front and back, creating seamless indoor-outdoor living. Retreat to the sunroom and cozy up to a fireplace while enjoying the outdoor views. Outdoor living is unparalleled, with meticulously manicured grounds, tree-lined lawns and a gunite pool with an automatic cover. The property also includes a four plus-car garage with a private apartment above, a historic Lord & Burnham greenhouse and a total of five porches. A property of this caliber is a rare offering, blending the grandeur of yesteryear with the finest modern conveniences. Whether entertaining on a grand scale or seeking a peaceful retreat, this home offers it all.

More Property Details

Room Information

Bedroom: 5   Full Bath: 5   Half Bath: 2  

Property Features

Lot Size: 3.83   Lot Sq Ft: 166830   Approx. Int. Sq. Ft.: 7931.00   Garage: Yes   Garage: 4.0   Parking Spaces: Yes   Parking Facilities: Detached, Heated Garage, Oversized   Porch Description: Yes   Existing Structures: InGround Pool   

Appliances & Utilities

Heat: Hot Water   A/C: Central Air   Water: Public   Sewer: Public Sewer  

Financial

Taxes: $73,207  

Local Area Information

School District: Park School  

Listing Information provided courtesy of Houlihan Lawrence Inc.  914-238-4766
Inquire About This Property

(*) - Required fields

  1. Presented by

    Gold Coast Homes & Estates
    • Gold Coast Homes & Estates
    • Licensed Real Estate Broker
    • (631) 283-1000
    •   Contact Us
OneKey™ MLSThe source of the displayed data is either the property owner or public record provided by non-governmental third parties. It is believed to be reliable but not guaranteed. Information Copyright 2020, OneKey™ MLS
© 2025 Gold Coast Homes & Estates. All rights reserved | Login | DMCA Notice | Search Engine powered by eRealtyMedia.com