Properties 12321 of 29758 results« Previous property   Next property »

77 Academy Street, Poughkeepsie, NY, 12601 $699,000

Multi Family For Sale 8 Beds , 4 Full Bath  

Property Picture
1 of 30
 
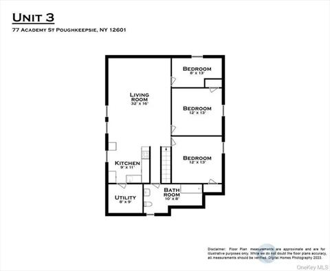
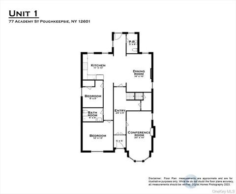
Front of Structure Front of Structure Front of Structure Front of Structure Aerial View Kitchen Kitchen Kitchen Kitchen Bedroom Other Bathroom Bathroom Kitchen Bonus Room Kitchen Other Other Bathroom Bathroom Other Entry Kitchen Bathroom Other Aerial View Aerial View Floor Plan Floor Plan Floor Plan
 

Details ML#: 892803  

  • # of Families: 3
  • Year Built: 1900
  • Taxes: $17,800
  • Status:Active

Description

Welcome to 77 Academy Street, a stately brick three-unit building located in Poughkeepsie’s historic Academy Street District. This beautifully maintained property features two spacious 3-bedroom apartments and one 2-bedroom unit, each offering a blend of classic charm and modern updates including hardwood floors, decorative fireplaces, and renovated kitchens. Just over a mile from the Poughkeepsie Metro-North Station, it’s ideal for commuters and offers strong rental income potential in a high-demand area. Surrounded by vibrant downtown amenities, restaurants, and cultural attractions, this property is a rare opportunity for investors or owner-occupants seeking character, convenience, and value in one of Poughkeepsie’s most desirable neighborhoods.

More Property Details

Room Information

Bedroom: 8   Full Bath: 4  

Property Features

Lot Size: 0.09   Lot Sq Ft: 3920   Parking Spaces: Yes   Parking Facilities: Off Street  

Appliances & Utilities

Heat: Baseboard, Natural Gas, Other   A/C: None   Water: Public   Sewer: Public Sewer  

Financial

Taxes: $17,800  

Local Area Information

School District: Gov George Clinton School  

Listing Information provided courtesy of Clarke Realty & Associates LLC  845-207-8078
Inquire About This Property

(*) - Required fields

  1. Presented by

    Gold Coast Homes & Estates
    • Gold Coast Homes & Estates
    • Licensed Real Estate Broker
    • (631) 283-1000
    •   Contact Us
OneKey™ MLSThe source of the displayed data is either the property owner or public record provided by non-governmental third parties. It is believed to be reliable but not guaranteed. Information Copyright 2020, OneKey™ MLS
© 2025 Gold Coast Homes & Estates. All rights reserved | Login | DMCA Notice | Search Engine powered by eRealtyMedia.com