Properties 12888 of 29569 results« Previous property   Next property »

89 E Clinton Avenue, Roosevelt, NY, 11575 $669,000

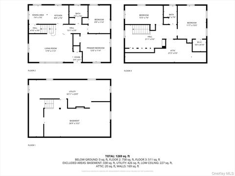
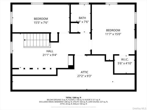
Single Family For Sale 4 Beds , 2 Full Bath , 1428 SqFt 

Property Picture
1 of 36
 
Front of Structure Front of Structure Front of Structure Yard Front of Structure Back of Structure Back of Structure Yard Yard Yard Aerial View Aerial View Aerial View Aerial View Aerial View Aerial View Other Sitting Room Kitchen Kitchen Other Bonus Room Other Bedroom Dining Area Other Other Other Bathroom Bathroom Basement Basement Floor Plan Floor Plan Floor Plan Floor Plan
 

Details ML#: 917383  

  • Style: Exp Cape
  • Year Built: 1955
  • Taxes: $9,373
  • Status:Active

Description

Welcome to this spacious 4 bedroom, 2 bathroom home in the heart of Roosevelt, NY. Perfectly located just 2 minutes away from the Southern State Parkway, with easy access to New York City and nearby transportation, this home offers both convenience and potential.Step inside and you’ll find a bright layout with generous living space that’s ready to be transformed into the home of your dreams. With a little vision, this property becomes the perfect canvas for your personal touch.Enjoy the versatility of a finished basement with its own outside entrance, ideal for extended living, a home office, or recreational space. The property also features a two-car garage and a huge backyard, providing endless opportunities for entertaining, gardening, or simply enjoying the outdoors.Don’t miss this opportunity to create your dream home in a great location with plenty of space inside and out!

More Property Details

Room Information

Bedroom: 4   Full Bath: 2   Other: 3  

Property Features

Lot Size: 0.1607   Lot Sq Ft: 7000   Approx. Int. Sq. Ft.: 1428.00   Garage: Yes   Garage: 2.0   Parking Spaces: Yes   Parking Facilities: Driveway, Garage  

Appliances & Utilities

Heat: Oil   A/C: Wall/Window Unit(s)   Water: Public   Sewer: Public Sewer  

Financial

Taxes: $9,373  

Local Area Information

School District: Centennial Avenue Elementary School  

Listing Information provided courtesy of Oversouth LLC  631-770-0030
Inquire About This Property

(*) - Required fields

  1. Presented by

    Gold Coast Homes & Estates
    • Gold Coast Homes & Estates
    • Licensed Real Estate Broker
    • (631) 283-1000
    •   Contact Us
OneKey™ MLSThe source of the displayed data is either the property owner or public record provided by non-governmental third parties. It is believed to be reliable but not guaranteed. Information Copyright 2020, OneKey™ MLS
© 2025 Gold Coast Homes & Estates. All rights reserved | Login | DMCA Notice | Search Engine powered by eRealtyMedia.com