Properties 13294 of 29569 results« Previous property   Next property »

3 Lacebark Lane, Medford, NY, 11763 $649,000

Single Family For Sale 3 Beds , 2 Full Bath , 1600 SqFt 

Property Picture
1 of 21
 
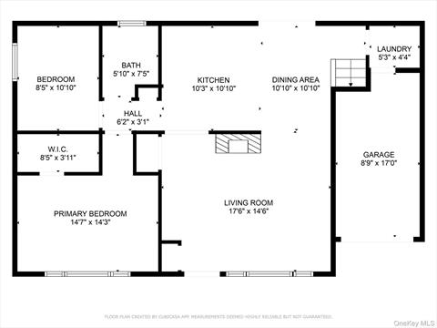
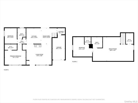
Aerial View Front of Structure Pool Living Room Kitchen Kitchen Bedroom Bedroom Bathroom Other Bathroom Bedroom Front of Structure Pool Pool Pool Front of Structure Front of Structure Floor Plan Floor Plan Floor Plan
 

Details ML#: 919846  

  • Style: Farmhouse
  • Year Built: 1972
  • Taxes: $11,613
  • Status:Active

Description

Discover your dream home at 3 Lacebark Lane in Medford, NY! Nestled in the sought after “Medford Pines, ” community, this move-in-ready gem seamlessly combines convenience, luxury, and tranquility. Located in a quiet cul-de-sac with minimal through traffic, you’ll enjoy a peaceful retreat just minutes from shops, stores, mass transit, and major highways like the LIE and Sunrise Highway for effortless commuting.The spacious home features stunning flooring throughout, new appliances, and a designer kitchen with a stacked porcelain stone backsplash and granite countertops. Each bedroom boasts walk-in closets, including a convenient primary suite on the ground floor. Upstairs, you’ll find a versatile loft perfect for a sitting area or den, an additional bedroom, and a full bath.Step outside to your private paradise: a gorgeous free-form saltwater pool, a custom wrap-around patio, and a large patio accessible from the kitchen’s sliding doors—perfect for entertaining. The underground utilities and sewers ensure modern convenience, while the extra-large driveway comfortably fits trailers, boats, or multiple vehicles.Just minutes away, explore vibrant Patchogue’s Main Street, packed with lively activities, parades, Zagat-rated restaurants, and charming shops. Don’t miss the opportunity to own this exceptional home in a prime location—your perfect lifestyle awaits!

More Property Details

Room Information

Bedroom: 3   Full Bath: 2   Other: 2  

Property Features

ConstructionMaterials: Mailbox, Rain Gutters   Approx. Int. Sq. Ft.: 1600.00   Garage: Yes   Garage: 1.0   Parking Spaces: Yes   Parking Spaces: 6   Parking Facilities: Assigned, Driveway, Garage, Garage Door Opener   Existing Structures: InGround Pool   

Appliances & Utilities

Heat: Hot Water, Oil   A/C: Wall/Window Unit(s)   Water: Public   Sewer: Public Sewer  

Financial

Taxes: $11,613  

Local Area Information

School District: Barton Elementary School   Block: 05   Lot: 016  

Listing Information provided courtesy of Coldwell Banker M&D Good Life  631-289-1400
Inquire About This Property

(*) - Required fields

  1. Presented by

    Gold Coast Homes & Estates
    • Gold Coast Homes & Estates
    • Licensed Real Estate Broker
    • (631) 283-1000
    •   Contact Us
OneKey™ MLSThe source of the displayed data is either the property owner or public record provided by non-governmental third parties. It is believed to be reliable but not guaranteed. Information Copyright 2020, OneKey™ MLS
© 2025 Gold Coast Homes & Estates. All rights reserved | Login | DMCA Notice | Search Engine powered by eRealtyMedia.com