Properties 13602 of 29569 results« Previous property   Next property »

1462 Clove Valley Rd, Lagrangeville, NY, 12540 $630,000

Single Family For Sale 4 Beds , 2 Full Bath , 1 Half Bath , 2800 SqFt 

Property Picture
1 of 29
 
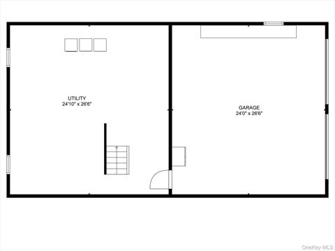
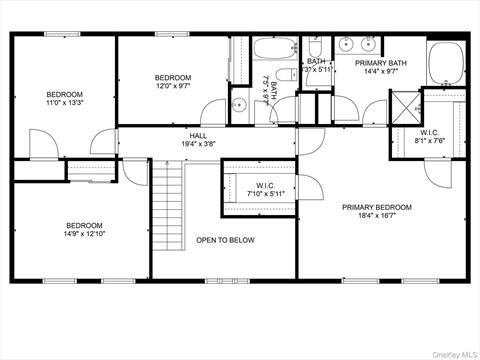
Front of Structure Front of Structure Aerial View Entry Living Room Living Room Kitchen Dining Area Dining Area Family Room Family Room Floor Plan Floor Plan Floor Plan Office Basement Basement Garage Bedroom Living Room Living Room Family Room Bathroom Other Bathroom Bathroom Laundry Basement Garage
 

Details ML#: 889177  

  • Style: Colonial
  • Year Built: 1999
  • Taxes: $14,419
  • Status:Active

Description

Pride in ownership shows all through out this spacious Center Hall, custom built Colonial. Beautiful Foyer, Hardwood floors, custom moldings. Security System. 2 car large attached garage. Landscaped and stone work in front entrance way. A very spacious private primary bedroom and bath with new skylight. Basement is easy finish if one wanted. All kitchen appliances are new or recently new and kitchen island stays. The den/office would lend to an in-law bedroom on first floor. Plenty of closets and storage. Every room has a AC unit. Easy commute to Westchester or NYC. House sets back from the road on 2.24 private acres. Close to Taconic parkway and I84 and Trains. Enjoy the quiet of mother nature and still be close to all the amenities, sites, towns, history and activities Hudson Valley as to offer.

More Property Details

Room Information

Bedroom: 4   Full Bath: 2   Half Bath: 1   Other: 2  

Property Features

Lot Size: 2.24   Lot Sq Ft: 97574   Approx. Int. Sq. Ft.: 2800.00   Garage: Yes   Garage: 2.0   Parking Spaces: Yes   Parking Spaces: 6   Parking Facilities: Attached, Off Street, Private  

Appliances & Utilities

Washer: Yes   Dryer: Yes   Refrigerator: Yes   Dishwasher: Yes   Heat: Baseboard, Oil   A/C: Ductless, ENERGY STAR Qualified Equipment, Multi Units, Wall/Window Unit(s)   Water: Well   Sewer: Septic Tank  

Financial

Taxes: $14,419  

Local Area Information

School District: Vail Farm Elementary School  

Listing Information provided courtesy of Dixon Smith Realty  914-489-7005
Inquire About This Property

(*) - Required fields

  1. Presented by

    Gold Coast Homes & Estates
    • Gold Coast Homes & Estates
    • Licensed Real Estate Broker
    • (631) 283-1000
    •   Contact Us
OneKey™ MLSThe source of the displayed data is either the property owner or public record provided by non-governmental third parties. It is believed to be reliable but not guaranteed. Information Copyright 2020, OneKey™ MLS
© 2025 Gold Coast Homes & Estates. All rights reserved | Login | DMCA Notice | Search Engine powered by eRealtyMedia.com