Properties 13663 of 29569 results« Previous property   Next property »

11 Rolan Court, Islip Terrace, NY, 11752 $629,990

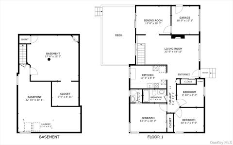
Single Family For Sale 3 Beds , 1 Full Bath , 1 Half Bath , 1530 SqFt 

Property Picture
1 of 26
 
Front of Structure Living Room Bathroom Patio Bedroom Bathroom Front of Structure Front of Structure Side of Structure Other Living Room Living Room Dining Area Dining Area Kitchen Kitchen Sitting Room Other Basement Patio Deck Yard Back of Structure Back of Structure Back of Structure Floor Plan
 

Details ML#: 912391  

  • Style: Ranch
  • Year Built: 1963
  • Taxes: $10,919
  • Status:Active

Description

Welcome to this charming wideline ranch nestled on a private cul-de-sac! This inviting home offers main-level living with a spacious living room, three comfortable bedrooms, and a 1.5 baths. The primary bedroom features a half bath, The expanded formal dining room is perfect for entertaining, while the full basement—partially finished—adds flexible space for recreation or storage. Step through the sliding doors to a wood deck that overlooks professionally landscaped grounds, complete with custom pavers and a built-in firepit and 5 Zone Custom automatic Sprinkler System—ideal for relaxing or hosting guests in total privacy. A rare find in a serene setting!

More Property Details

Room Information

Bedroom: 3   Full Bath: 1   Half Bath: 1   Other: 2  

Property Features

Lot Size: 0.29   Lot Sq Ft: 12632   Approx. Int. Sq. Ft.: 1530.00   Garage: Yes   Garage: 1.0  

Appliances & Utilities

Heat: Hot Air, Oil   A/C: Wall/Window Unit(s)   Water: Public   Sewer: Cesspool  

Financial

Taxes: $10,919  

Local Area Information

School District: Connetquot Elementary School  

Listing Information provided courtesy of Michael J Watts & Assoc Inc  631-650-9933
Inquire About This Property

(*) - Required fields

  1. Presented by

    Gold Coast Homes & Estates
    • Gold Coast Homes & Estates
    • Licensed Real Estate Broker
    • (631) 283-1000
    •   Contact Us
OneKey™ MLSThe source of the displayed data is either the property owner or public record provided by non-governmental third parties. It is believed to be reliable but not guaranteed. Information Copyright 2020, OneKey™ MLS
© 2025 Gold Coast Homes & Estates. All rights reserved | Login | DMCA Notice | Search Engine powered by eRealtyMedia.com