Properties 13668 of 29569 results« Previous property   Next property »

690 Minnieford Avenue, Bronx, NY, 10464 $629,000

Single Family For Sale 3 Beds , 2 Full Bath , 1405 SqFt 

Property Picture
1 of 23
 
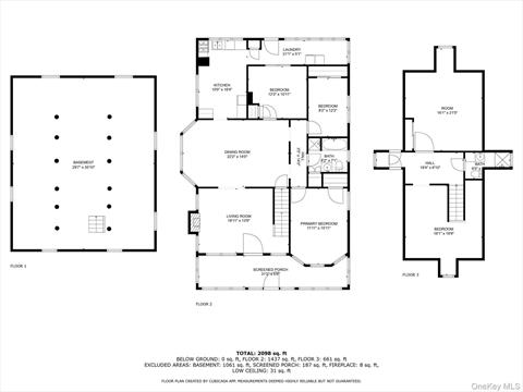
Front of Structure Sun Room Kitchen Kitchen Kitchen Dining Area Dining Area Dining Area Bedroom Bedroom Bathroom Bathroom Bedroom Bedroom Living Room Living Room Back of Structure Patio Other Floor Plan Floor Plan Floor Plan Floor Plan
 

Details ML#: 827405  

  • Style: Ranch
  • Year Built: 1925
  • Taxes: $7,808
  • Status:Active

Description

Nestled just beyond the bridge, this charming ranch-style home presents a fantastic opportunity to create your dream living space. While it awaits your personal touch and updates, the layout offers a solid foundation with all the essentials. On the main floor, you’ll find three comfortable bedrooms and a full bathroom. The eat-in kitchen flows seamlessly into the living room, complete with a cozy fireplace, and a separate formal dining room perfect for entertaining. The attic provides an additional bedroom and bathroom as well as an abundance of storage. A detached garage provides convenience, and the side yard offers ample parking, the backyard is a wonderful space for hosting cozy get-togethers and the front porch is an added bonus for relaxation. This home is brimming with potential and awaits your vision to bring it to life!

More Property Details

Room Information

Bedroom: 3   Full Bath: 2   Other: 2  

Property Features

Lot Size: 0.1722   Lot Sq Ft: 7501   Approx. Int. Sq. Ft.: 1405.00   Garage: Yes   Garage: 1.0  

Appliances & Utilities

Heat: Oil   A/C: None   Water: Public   Sewer: Public Sewer  

Financial

Taxes: $7,808  

Local Area Information

School District: Ps 175 City Island  

Listing Information provided courtesy of Bee Home Realty  646-842-2354
Inquire About This Property

(*) - Required fields

  1. Presented by

    Gold Coast Homes & Estates
    • Gold Coast Homes & Estates
    • Licensed Real Estate Broker
    • (631) 283-1000
    •   Contact Us
OneKey™ MLSThe source of the displayed data is either the property owner or public record provided by non-governmental third parties. It is believed to be reliable but not guaranteed. Information Copyright 2020, OneKey™ MLS
© 2025 Gold Coast Homes & Estates. All rights reserved | Login | DMCA Notice | Search Engine powered by eRealtyMedia.com