Properties 14707 of 29987 results« Previous property   Next property »

11 Church Street, Hyde Park, NY, 12538 $575,900

Single Family For Sale 3 Beds , 2 Full Bath , 1 Half Bath , 1830 SqFt 

Property Picture
1 of 3
 
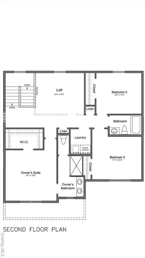
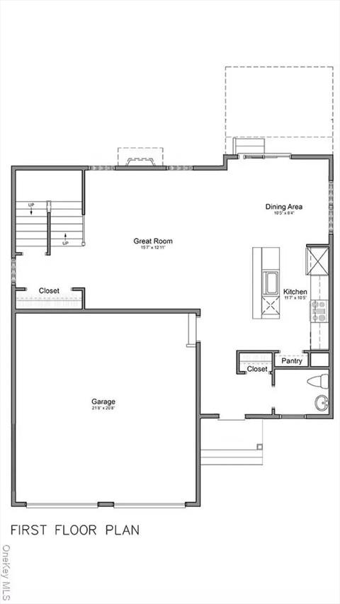
Front of Structure Floor Plan Floor Plan
 

Details ML#: 912693  

  • Style: Contemporary
  • Year Built: 2026
  • Taxes: $12,265
  • Status:Active

Description

TO BE BUILT! Welcome to the Clark – a thoughtfully designed new construction home brought to you by LMD Homes. Nestled in the heart of charming Hyde Park, this home blends modern comfort with timeless style, and already includes a number of sought-after structural upgrades, all built into the price. Step inside and enjoy the open feel created by 9-foot ceilings on the first floor and an abundance of natural light from six additional windows thoughtfully placed throughout the home. The gourmet kitchen is a true centerpiece, featuring a two-foot expansion, cooktop with vented exhaust fan, and a double wall oven—perfect for entertaining or everyday living. Just off the kitchen, a 10’x12’ pressure-treated deck extends your living space outdoors. Upstairs, the owner’s suite offers a spacious 5-foot shower and dual sinks for added convenience. The oak tread staircase adds warmth and durability, while the cozy fireplace creates a welcoming focal point in the great room. Additional highlights include a full 8’ poured concrete basement, two-zone central air conditioning, and carefully chosen enhancements that elevate both function and design. For a limited time, buyers will have the opportunity to personalize this home by selecting their own interior finishes, making it uniquely theirs. Located in scenic Hyde Park, this home offers the rare combination of new construction convenience in a picturesque and historic setting. Don’t miss the chance to make this upgraded Clark model your own!

More Property Details

Room Information

Bedroom: 3   Full Bath: 2   Half Bath: 1   Other: 5  

Property Features

Lot Size: 0.51   Approx. Int. Sq. Ft.: 1830.00   Garage: Yes   Garage: 2.0   Parking Spaces: Yes   Parking Facilities: Attached, Driveway, Garage  

Appliances & Utilities

Heat: Forced Air, Other   A/C: Central Air   Water: Well   Sewer: Septic Tank  

Financial

Taxes: $12,265  

Local Area Information

School District: Ralph R Smith School  

Listing Information provided courtesy of eXp Realty  888-276-0630
Inquire About This Property

(*) - Required fields

  1. Presented by

    Gold Coast Homes & Estates
    • Gold Coast Homes & Estates
    • Licensed Real Estate Broker
    • (631) 283-1000
    •   Contact Us
OneKey™ MLSThe source of the displayed data is either the property owner or public record provided by non-governmental third parties. It is believed to be reliable but not guaranteed. Information Copyright 2020, OneKey™ MLS
© 2025 Gold Coast Homes & Estates. All rights reserved | Login | DMCA Notice | Search Engine powered by eRealtyMedia.com