Properties 14782 of 28730 results« Previous property   Next property »

Rt-94, New Windsor, NY, 12553 $499,000

Misc Commercial  

Property Picture
1 of 2
 
Plat Map Community
 

Details ML#: 927873  

  • Sale or Rent:Sale
  • Taxes: $2,536
  • Status:Active

Description

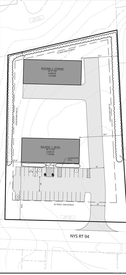
Two acres wide open canvas for Neighborhood Commercial Zone. Site plans in pics shows 1 possible layout. Great for retail mall or flex type spaces. Sewer, water, gas all available. All plans to require town approvals.

More Property Details

Property Features

Lot Size: 2   Lot Sq Ft: 87120  

Appliances & Utilities

Heat: None   A/C: None   Water: Public   Sewer: Public Sewer  

Financial

Taxes: $2,536  

Listing Information provided courtesy of Keller Williams Realty  845-928-8000
Inquire About This Property

(*) - Required fields

  1. Presented by

    Gold Coast Homes & Estates
    • Gold Coast Homes & Estates
    • Licensed Real Estate Broker
    • (631) 283-1000
    •   Contact Us
OneKey™ MLSThe source of the displayed data is either the property owner or public record provided by non-governmental third parties. It is believed to be reliable but not guaranteed. Information Copyright 2020, OneKey™ MLS
© 2025 Gold Coast Homes & Estates. All rights reserved | Login | DMCA Notice | Search Engine powered by eRealtyMedia.com