Properties 15458 of 29563 results« Previous property   Next property »

40-38 194th Street Unit 1A, Flushing, NY, 11358 $529,000

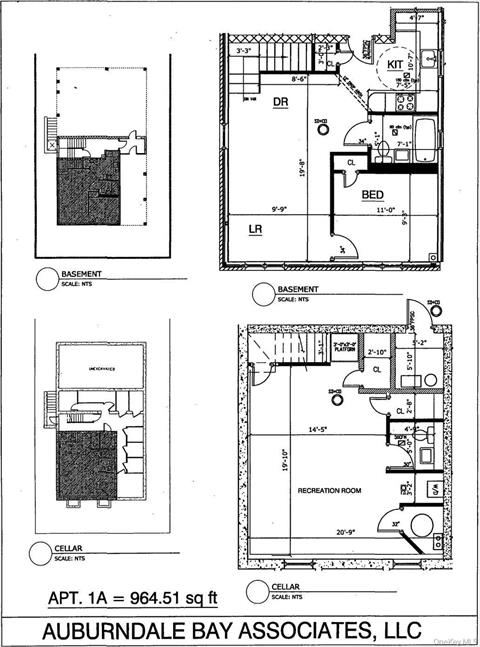
Condo For Sale 1 Beds , 2 Full Bath , 965 SqFt 

Property Picture
1 of 18
 
Front of Structure Other Front of Structure Living Room Living Room Living Room Office Kitchen Kitchen Kitchen Bedroom Bathroom Exercise Room Exercise Room Bathroom Yard Yard Floor Plan
 

Details ML#: 901183  

  • Style: Other
  • Year Built: 2010
  • Taxes: $6,858
  • Status:Active

Description

Introducing A Beautifully Appointed Duplex Condominium That Combines Modern Design With Functional Living. This Spacious Home Features A Sun-Filled Living Area With Oversized Windows, A Contemporary Kitchen Outfitted With Stainless Steel Appliances, Granite Countertops, And Bathrooms Have Been Thoughtfully Updated With High-End Fixtures And Stylish Finishes. Additional Highlights Include In-Unit Laundry And Refined Finishes Throughout. The Lower Level Features A Fully Finished Basement, Offering Flexible Space Ideal For A Family Room, Home Office, Guest Suite, Or Recreational Area-Perfect For A Variety Of Lifestyle Needs. Superbly Located In The Heart Of Auburndale, The Property Is Just One Bock From Northern Boulevard and Two Blocks From The Long Island Rail Road (LIRR), Providing Effortless Access To Manhattan And Surrounding Neighborhoods. The Condo Is Also Surrounded By A Diverse Array Of Restaurants, Supermarkets, Shops, And Public Parks. Monthly Common Charges Are $363.17, Which Includes A Storage Cubical. This Unit Offers Exceptional Value For The Amenities And Location. No Board Approval Required.

More Property Details

Animals Policy: Cats OK, Dogs OK

Room Information

Bedroom: 1   Full Bath: 2   Other: 1  

Property Features

Approx. Int. Sq. Ft.: 964.51  

Appliances & Utilities

Heat: Natural Gas   A/C: Central Air   Water: Public   Sewer: None  

Financial

Taxes: $6,858  

Local Area Information

School District: Ps 31 Bayside  

Listing Information provided courtesy of Voro LLC  877-943-8676
Inquire About This Property

(*) - Required fields

  1. Presented by

    Gold Coast Homes & Estates
    • Gold Coast Homes & Estates
    • Licensed Real Estate Broker
    • (631) 283-1000
    •   Contact Us
OneKey™ MLSThe source of the displayed data is either the property owner or public record provided by non-governmental third parties. It is believed to be reliable but not guaranteed. Information Copyright 2020, OneKey™ MLS
© 2025 Gold Coast Homes & Estates. All rights reserved | Login | DMCA Notice | Search Engine powered by eRealtyMedia.com