Properties 15520 of 29758 results« Previous property   Next property »

98-120 Queens Boulevard Unit 5/D, Rego Park, NY, 11374 $519,000

Coop For Sale 3 Beds , 2 Full Bath , 1205 SqFt 

Property Picture
1 of 32
 
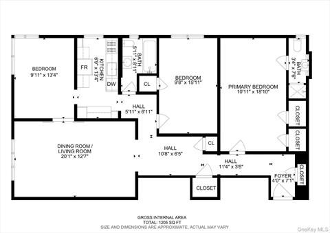
Floor Plan
 

Details ML#: 922088  

  • Style: Other
  • Year Built: 1939
  • Status:Active

Description

Discover a rare chance to own this expansive converted 3 bedroom 2 bath unit in a highly sought-after location at the Virginia! The largest line in Building.This unique, corner residence features an entry hallway which connects to a spacious corridor and expansive living room. Enjoy an updated kitchen with a pantry, rich cherry cabinets, and elegant granite countertops. An expansive corner formal dining room with stylish barn doors can easily convert to a 3rd bedroom or work from home office. 2 additional king-size bedrooms are set back for peace and tranquility. The unit’s desirable southeast exposures bring in abundant natural light all day highlighting the charming prewar details of 9ft ceilings and beautiful solid oak hardwood floors throughout.The Virginia is situated on the borderline of Forest Hills and Rego Park. This well-maintained prewar building is one of the few pet-friendly buildings in the area with a 35lb weight restriction. Residents enjoy the convenience and security of a new video intercom system, a live-in super, and laundry room. No flip tax when you sell, and subletting is allowed after 2 years of residence. A way of life with convenience to a stellar selection of diverse restaurants, cafes, bars, and shops. Quick and seamless access to the local R and M trains, highways, LIRR, and express buses to Manhattan. Friendly community just minutes to parks, playgrounds, and shopping on Austin Street.

More Property Details

Animals Policy: Cats OK, Dogs OK, Size Limit, Yes

Room Information

Bedroom: 3   Full Bath: 2   Other: 2  

Property Features

Approx. Int. Sq. Ft.: 1205.00   Parking Spaces: Yes   Parking Facilities: On Street   Stories: 6  

Appliances & Utilities

Heat: Other   A/C: Wall/Window Unit(s)   Water: Other   Sewer: Other  

Local Area Information

School District: Ps 139 Rego Park  

Listing Information provided courtesy of EXP Realty  888-276-0630
Inquire About This Property

(*) - Required fields

  1. Presented by

    Gold Coast Homes & Estates
    • Gold Coast Homes & Estates
    • Licensed Real Estate Broker
    • (631) 283-1000
    •   Contact Us
OneKey™ MLSThe source of the displayed data is either the property owner or public record provided by non-governmental third parties. It is believed to be reliable but not guaranteed. Information Copyright 2020, OneKey™ MLS
© 2025 Gold Coast Homes & Estates. All rights reserved | Login | DMCA Notice | Search Engine powered by eRealtyMedia.com