Properties 15967 of 29987 results« Previous property   Next property »

13 Garfield Place, Poughkeepsie, NY, 12601 $499,000

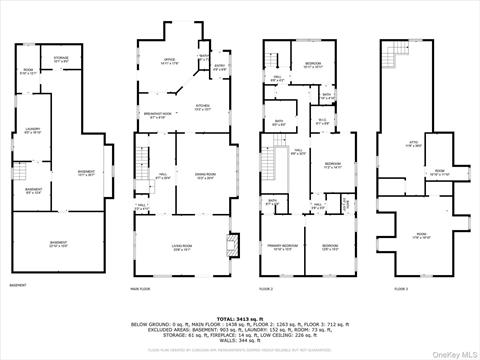
Single Family For Sale 4 Beds , 2 Full Bath , 3 Half Bath , 3354 SqFt 

Property Picture
1 of 48
 
Front of Structure Front of Structure Front of Structure Entry Entry Entry Entry Dining Area Dining Area Dining Area Living Room Living Room Living Room Living Room Kitchen Kitchen Kitchen Kitchen Breakfast Area Breakfast Area Breakfast Area Office Office Bathroom Other Other Bedroom Other Bathroom Bathroom Primary Bedroom Primary Bathroom Bedroom Bathroom Bedroom Bathroom Attic Attic Attic Back of Structure Yard Garage Yard Floor Plan Floor Plan Floor Plan Floor Plan Floor Plan
 

Details ML#: 882506  

  • Style: Victorian
  • Year Built: 1880
  • Taxes: $10,675
  • Status:Active

Description

Step into The Gilded Age! Come tour this treasure box in the registered NationalHistoric District and count how many incredible original details you can find: crownmolding, chandeliers and light fixtures, lead-glass windows, mahogany inlayedhardwood floors, built-ins, marble mantle, slate roof, cedar room, pocket doors, Frenchdoors and more! The craftsmanship is truly remarkable.With 4 bedrooms, two full baths and three half baths, this 3.354 square feet home alsohas a jaw-dropping dining room worthy of a Rockefeller, living room, updated eat-in-kitchen, office, mudroom, huge partially finished attic (with a cedar room!), largeunfinished basement and detached garage.Live like a tycoon on a quiet, tree-lined street full of historic Victorian charm whilesimultaneously being near all the city’s amenities—shopping, dining, Metro-North, Vassar College, and the Walkway Over the Hudson.

More Property Details

Room Information

Bedroom: 4   Full Bath: 2   Half Bath: 3  

Property Features

ConstructionMaterials: Juliet Balcony   Lot Size: 0.17   Lot Sq Ft: 7405   Approx. Int. Sq. Ft.: 3354.00   Garage: Yes   Garage: 1.0   Parking Spaces: Yes   Parking Spaces: 4   Parking Facilities: Driveway, Garage   Porch Description: Yes  

Appliances & Utilities

Heat: Natural Gas, Steam   A/C: Ductless, Wall/Window Unit(s)   Water: Public   Sewer: Public Sewer  

Financial

Taxes: $10,675  

Local Area Information

School District: Gov George Clinton School   Block: 21   Lot: 26  

Listing Information provided courtesy of BHHS River Towns Real Estate  914-739-5300
Inquire About This Property

(*) - Required fields

  1. Presented by

    Gold Coast Homes & Estates
    • Gold Coast Homes & Estates
    • Licensed Real Estate Broker
    • (631) 283-1000
    •   Contact Us
OneKey™ MLSThe source of the displayed data is either the property owner or public record provided by non-governmental third parties. It is believed to be reliable but not guaranteed. Information Copyright 2020, OneKey™ MLS
© 2025 Gold Coast Homes & Estates. All rights reserved | Login | DMCA Notice | Search Engine powered by eRealtyMedia.com