Properties 16182 of 29569 results« Previous property   Next property »

3720 Independence Avenue Unit 4E, Bronx, NY, 10463 $480,000

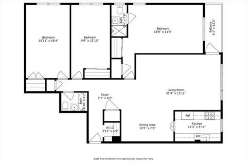
Coop For Sale 3 Beds , 2 Full Bath , 1500 SqFt 

Property Picture
1 of 21
 
Dining Area Balcony Living Room Other Dining Area Kitchen Kitchen Living Room Living Room Other Bedroom Bedroom Bathroom Office Office Bedroom Bathroom Front of Structure Lobby Laundry Floor Plan
 

Details ML#: 896562  

  • Style: Other
  • Year Built: 1954
  • Status:Active

Description

Don’t miss this exceptional opportunity to own a spacious, rarely available 3 bedroom 2 bathroom corner unit in the highly sought after Bonnie House. This bright and expansive home offers everything you need for comfortable and convenient living. Enjoy a recently renovated balcony perfect for relaxing, three full sized bedrooms that provide plenty of flexibility for family, guests, or a home office. The updated primary bathroom adds a modern touch, and closet space is abundant throughout the apartment. Additional highlights include freshly refinished hardwood floors and a newly painted interior, creating a move in ready feel from the moment you enter. The Bonnie House features a range of amenities, including a live in super, on site laundry room, private storage unit, bicycle room, and garage parking (waitlist). Located directly across from schools and close to transportation, shopping, and parks, this home offers the perfect combination of space, location, and convenience.

More Property Details

Animals Policy: No

Room Information

Bedroom: 3   Full Bath: 2   Other: 1  

Property Features

Approx. Int. Sq. Ft.: 1500.00   Garage: Yes   Garage: 0.0   Parking Spaces: Yes   Parking Facilities: Waitlist  

Appliances & Utilities

Heat: See Remarks   A/C: Wall/Window Unit(s)   Water: Public   Sewer: Public Sewer  

Local Area Information

School District: Ps 24 Spuyten Duyvil  

Listing Information provided courtesy of Douglas Elliman Real Estate  718-884-5815
Inquire About This Property

(*) - Required fields

  1. Presented by

    Gold Coast Homes & Estates
    • Gold Coast Homes & Estates
    • Licensed Real Estate Broker
    • (631) 283-1000
    •   Contact Us
OneKey™ MLSThe source of the displayed data is either the property owner or public record provided by non-governmental third parties. It is believed to be reliable but not guaranteed. Information Copyright 2020, OneKey™ MLS
© 2025 Gold Coast Homes & Estates. All rights reserved | Login | DMCA Notice | Search Engine powered by eRealtyMedia.com