Properties 17203 of 29569 results« Previous property   Next property »

20 Beechford Drive, Boiceville, NY, 12412 $419,000

Single Family For Sale 2 Beds , 2 Full Bath , 1404 SqFt 

Property Picture
1 of 50
 
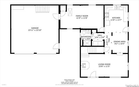
Front of Structure Front of Structure Living Room Living Room Living Room Living Room Dining Area Dining Area Dining Area Dining Area Kitchen Kitchen Kitchen Kitchen Kitchen Kitchen Dining Area Bedroom Bedroom Bathroom Laundry Bedroom Bedroom Bathroom Basement Basement Other Other Basement Garage Garage Front of Structure Front of Structure Deck Yard Out Buildings Front of Structure Yard Yard Yard Back of Structure Out Buildings Back of Structure Other Back of Structure Floor Plan Floor Plan Floor Plan Floor Plan Aerial View
 

Details ML#: 921936  

  • Style: Other
  • Year Built: 1980
  • Taxes: $5,012
  • Status:Active

Description

10/14/2025 Offer accepted, seller has requested no more showings at this time.Discover your dream retreat in this spacious 2-bedroom, 2-bathroom with possible 3rd bedroom, perfectly situated in the hamlet of Boiceville. Offering 1, 404 square feet of inviting living space, this residence is designed for comfort and versatility, featuring a 2-car garage with convenient walk-up storage. As you step into the bright and airy living room, the beautifully updated kitchen was renovated in 2016, boasts custom wood cabinets, all brand new stainless steel appliances & granite countertops—imagine whipping up culinary delights in this sunlit haven! The enchanting deck sets the stage for outdoor relaxation and entertaining, surrounded by thoughtfully landscaped gardens that bloom with color throughout the seasons. For those who work from home, you’ll appreciate the dedicated office space filled with natural light, or utilize the convenient space above the garage as a second office. Wake each day to breathtaking mountain views that grace the living room and front of the house, adding a picturesque backdrop to your everyday life.This home is equipped with ductless mini splits, ensuring year-round comfort, along with a Generac generator for added peace of mind. Conveniently located just 8 miles from Woodstock and 5 miles from Phoenicia, you’ll have easy access to local amenities, including the beautiful Ashokan Rail Trail, Onteora Mountain House, and The Emerson Resort & Spa. Enjoy some of the best fly fishing spots and don’t forget the iconic Phoenicia Diner, just a short hop away! Close to some of the areas best skiing- Belleayre Mt 14.8 mils and Hunter Mt is 18.8 miles away. Don’t miss your chance to make this charming home yours—experience serene living with all the conveniences you desire!

More Property Details

Room Information

Bedroom: 2   Full Bath: 2   Other: 1  

Property Features

Lot Size: 0.59   Lot Sq Ft: 1   Approx. Int. Sq. Ft.: 1404.00   Garage: Yes   Garage: 2.0   Parking Spaces: Yes   Parking Facilities: Driveway, Garage, Garage Door Opener   Deck: Yes  

Appliances & Utilities

Heat: Electric   A/C: Ductless   Water: Well   Sewer: Septic Tank  

Financial

Taxes: $5,012  

Local Area Information

School District: Reginald Bennett Elementary School   Block: 1   Lot: 22  

Listing Information provided courtesy of Corcoran Country Living  845-338-5832
Inquire About This Property

(*) - Required fields

  1. Presented by

    Gold Coast Homes & Estates
    • Gold Coast Homes & Estates
    • Licensed Real Estate Broker
    • (631) 283-1000
    •   Contact Us
OneKey™ MLSThe source of the displayed data is either the property owner or public record provided by non-governmental third parties. It is believed to be reliable but not guaranteed. Information Copyright 2020, OneKey™ MLS
© 2025 Gold Coast Homes & Estates. All rights reserved | Login | DMCA Notice | Search Engine powered by eRealtyMedia.com