Properties 17269 of 29758 results« Previous property   Next property »

TBD Fosler Rd, Plattekill, NY, 12568 $400,000

Multi Family Commercial , 30000 SqFt 

Property Picture
1 of 8
 
 

Details ML#: H6260337  

  • # of Families: 15
  • Sale or Rent:Sale
  • Year Built: 2023
  • Taxes: $3,861
  • Status:Active

Description

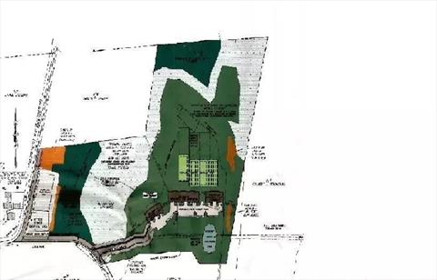
Apartment Complex to be built by purchaser: 15 unit apartment /condo complex located in Plattekill, NY. This project was fully approved and ready to be built but approvals expired and need to be updated. The three buildings were approved for fifteen units, up to 2000 sq. ft., two story dwellings and is set back on a secluded 18.8 acre parcel. Maps, architectural drawings and site details are available. Included in this price is an additional 22 +/- adjacent acres, SBL # 102.1-7-12, for a possible Phase II. Being sold as is and looking for a quick closing.Also, this property could potentially be redeveloped into a subdivision of single family homes.

More Property Details

Property Features

Lot Size: 18.8   Lot Sq Ft: 818928   Approx. Int. Sq. Ft.: 30000.00   Parking Spaces: Yes   Parking Facilities: Parking Lot  

Appliances & Utilities

Heat: Electric   A/C: Central Air   Water: Well   Sewer: Septic Tank  

Financial

Taxes: $3,861  

Local Area Information

School District: Wallkill  

Listing Information provided courtesy of Quinn Realty Group Inc  (845) 883-7700
Inquire About This Property

(*) - Required fields

  1. Presented by

    Gold Coast Homes & Estates
    • Gold Coast Homes & Estates
    • Licensed Real Estate Broker
    • (631) 283-1000
    •   Contact Us
OneKey™ MLSThe source of the displayed data is either the property owner or public record provided by non-governmental third parties. It is believed to be reliable but not guaranteed. Information Copyright 2020, OneKey™ MLS
© 2025 Gold Coast Homes & Estates. All rights reserved | Login | DMCA Notice | Search Engine powered by eRealtyMedia.com