Properties 1929 of 29987 results« Previous property   Next property »

12002 Merrick Boulevard, Jamaica, NY, 11434 $2,499,000

Mixed Use Commercial  

Property Picture
1 of 7
 
Front of Structure Yard Yard Yard Other Other Other
 

Details ML#: 917806  

  • Sale or Rent:Sale
  • Year Built: 1930
  • Taxes: $12,572
  • Status:Active

Description

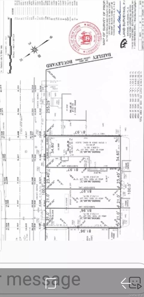
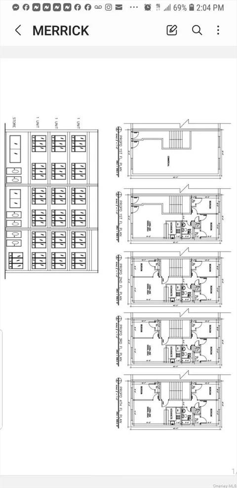
Great Development Opportunity – Residential & Commercial Mixed-Use - This is an excellent opportunity to develop a mixed-use property with significant potential. The site includes a proposed plan for four (4) three-family residential buildings and four (4) commercial spaces, offering a strong return on investment in a high-demand area.Zoning: R5B / C1-3 - FAR: 2.0 - With approved plans - Property will be delivered vacant at closing. This project is ideal for developers looking to build multifamily residences with street-level commercial units in a well-zoned, growing neighborhood.

More Property Details

Property Features

Lot Size: 0.1877   Lot Sq Ft: 8175  

Appliances & Utilities

Heat: Hot Air   A/C: None   Water: Public   Sewer: Public Sewer  

Financial

Taxes: $12,572  

Listing Information provided courtesy of Elite Realty of USA Inc  718-551-9800
Inquire About This Property

(*) - Required fields

  1. Presented by

    Gold Coast Homes & Estates
    • Gold Coast Homes & Estates
    • Licensed Real Estate Broker
    • (631) 283-1000
    •   Contact Us
OneKey™ MLSThe source of the displayed data is either the property owner or public record provided by non-governmental third parties. It is believed to be reliable but not guaranteed. Information Copyright 2020, OneKey™ MLS
© 2025 Gold Coast Homes & Estates. All rights reserved | Login | DMCA Notice | Search Engine powered by eRealtyMedia.com