Properties 20569 of 29569 results« Previous property   Next property »

88-10 32 Av Unit 106, East Elmhurst, NY, 11369 $238,888

Coop For Sale 1 Beds , 1 Full Bath , 700 SqFt 

Property Picture
1 of 10
 
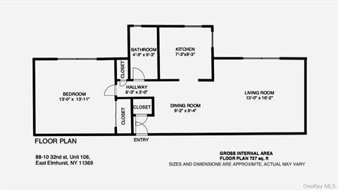
Front of Structure Living Room Living Room Kitchen Kitchen Dining Area Bedroom Bedroom Bathroom Floor Plan
 

Details ML#: 913809  

  • Style: Garden, Other
  • Year Built: 1950
  • Status:Active

Description

Welcome to this charming one-bedroom coop, ideally situated on the first floor of the coveted Northridge Section III , in the heart of Jackson Heights. This inviting unit combines modern living with exceptional convenience, making it the perfect place to call home.As you step into this thoughtfully designed space, you’ll be greeted by a spacious living room drenched in natural light and featuring beautifully exposed hardwood floors. The layout is open and ideal for both relaxing and entertaining, providing ample space for comfortable lounging and dining.The windowed kitchen is efficiently designed with plenty of cabinetry and offers an ideal space for meal preparation. A versatile foyer adds to the home’s appeal and can easily be transformed into a cozy dining area or a productive home office, catering to your personal lifestyle needs.The generously sized bedroom features abundant closet space, providing a serene retreat for rest and relaxation. The bathroom, bright and spacious, completes the unit’s thoughtful design.Building Amenities Include:Elevator access, On-site laundry facilities, Private courtyard with beautiful greeneryCat-friendly policy (small pets like birds and fish are also welcome) maintenance covers heat, hot water, gas, and electricity. Enjoy the benefits of a well-maintained building in an ideal location that places you just minutes away from excellent local shopping, dining, parks, and more. The Q33, Q47, Q49, and Q72 buses are at your doorstep, with easy access to the E, F, M, and R subway lines. Iconic spots like Traverse Park and Jackson Heights Shopping Center are just a short distance away for outdoor activities and convenient shopping.

More Property Details

Animals Policy: Cats OK

Room Information

Bedroom: 1   Full Bath: 1   Other: 2  

Property Features

Approx. Int. Sq. Ft.: 700.00   Garage: Yes   Garage: 1.0   Parking Spaces: Yes   Parking Facilities: Covered, Garage, On Street, Waitlist   Stories: 6   Pets: Yes  

Appliances & Utilities

Heat: Electric, Hot Water   A/C: None   Water: Public   Sewer: Public Sewer  

Local Area Information

School District: Ps 149 Christa Mcauliffe  

Listing Information provided courtesy of INFINITY LUXXE ESTATES LLC  347-845-8588
Inquire About This Property

(*) - Required fields

  1. Presented by

    Gold Coast Homes & Estates
    • Gold Coast Homes & Estates
    • Licensed Real Estate Broker
    • (631) 283-1000
    •   Contact Us
OneKey™ MLSThe source of the displayed data is either the property owner or public record provided by non-governmental third parties. It is believed to be reliable but not guaranteed. Information Copyright 2020, OneKey™ MLS
© 2025 Gold Coast Homes & Estates. All rights reserved | Login | DMCA Notice | Search Engine powered by eRealtyMedia.com