Properties 21164 of 29569 results« Previous property   Next property »

15 Scenic Drive Unit K, Croton-on-Hudson, NY, 10520 $193,000

Coop For Sale 1 Beds , 1 Full Bath , 780 SqFt 

Property Picture
1 of 22
 
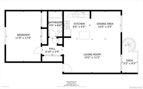
Community Living Room Living Room Living Room Other Living Room Dining Area Dining Area Dining Area Kitchen Kitchen Kitchen Kitchen Breakfast Area Bathroom Bedroom Bedroom Bedroom Balcony Balcony Front of Structure Floor Plan
 

Details ML#: 913882  

  • Style: Other
  • Year Built: 1970
  • Status:Active

Description

Fully Renovated 1-Bedroom Co-op in Hudson Woods, Croton-on-HudsonMove right into this beautifully renovated top-floor 1-bedroom, 1-bathroom co-op in the desirable Hudson Woods community. The home has been completely updated with a brand-new kitchen featuring a center island with breakfast bar, granite countertops, white cabinetry, and stainless steel appliances. The kitchen opens seamlessly to the dining and living areas, creating a bright, open flow that’s perfect for both everyday living and entertaining.The spacious bedroom offers two double closets and a large window that fills the room with natural light. A hallway with additional double closets provides excellent storage, while the updated bathroom includes a tub/shower combination and a vanity with granite countertop. Freshly painted throughout, the home also features gleaming hardwood floors, new LED recessed lighting, and decorative ceiling fans that enhance both style and comfort.Step outside to your private balcony with extra storage and enjoy the peace and quiet of being on the top floor with no one above you. An assigned parking space adds convenience, and the community’s location provides easy access to shops, restaurants, parks, and the Croton Metro-North station for a quick commute to NYC. This move-in ready home offers the perfect blend of modern updates, comfort, and convenience.

More Property Details

Animals Policy: Cats OK, No Dogs

Room Information

Bedroom: 1   Full Bath: 1   Other: 2  

Property Features

Lot Size: 0.14   Lot Sq Ft: 6098   Approx. Int. Sq. Ft.: 780.00   Parking Spaces: Yes   Parking Spaces: 1   Parking Facilities: Assigned, Parking Lot   Stories: 3  

Appliances & Utilities

Washer: Yes   Refrigerator: Yes   Dishwasher: Yes   Heat: Baseboard, Hot Water, Natural Gas   A/C: Wall/Window Unit(s)   Water: Public   Sewer: Public Sewer  

Local Area Information

School District: Frank G Lindsey Elementary School  

Listing Information provided courtesy of William Raveis-New York, LLC  914-238-0505
Inquire About This Property

(*) - Required fields

  1. Presented by

    Gold Coast Homes & Estates
    • Gold Coast Homes & Estates
    • Licensed Real Estate Broker
    • (631) 283-1000
    •   Contact Us
OneKey™ MLSThe source of the displayed data is either the property owner or public record provided by non-governmental third parties. It is believed to be reliable but not guaranteed. Information Copyright 2020, OneKey™ MLS
© 2025 Gold Coast Homes & Estates. All rights reserved | Login | DMCA Notice | Search Engine powered by eRealtyMedia.com