Properties 21846 of 29987 results« Previous property   Next property »

50 Maple Street, Catskill, NY, 12414 $150,000

Single Family For Sale 6 Beds , 2 Full Bath , 2880 SqFt 

Property Picture
1 of 27
 
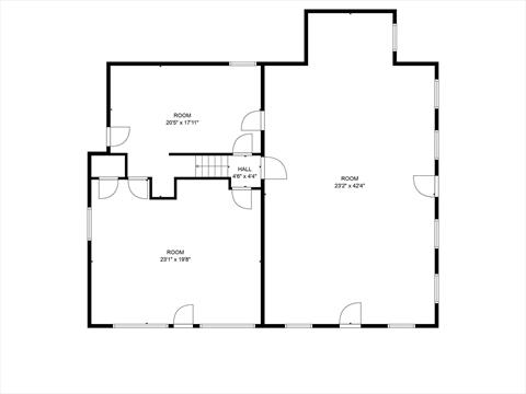
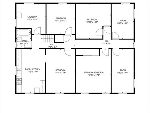
Front of Structure Front of Structure Front of Structure Community Other Other Other Other Other Other Other Kitchen Bathroom Laundry Bedroom Kitchen Bedroom Other Other Side of Structure Yard Back of Structure Back of Structure Yard Yard Floor Plan Floor Plan
 

Details ML#: 883691  

  • Style: Other
  • Year Built: 1930
  • Taxes: $2,409
  • Status:Active

Description

Bring your vision to 50 Maple Street, a generously sized home in the quiet hamlet of Cementon within the Catskills School District. This property offers tons of room to spread out, with a flexible layout perfect for those seeking space to create, work, or even invest. The first floor you’ll find expansive rooms making it ideal for creative studios, recreation areas and large living space. Several rooms on the second floor can serve as bedrooms, offices, or hobby spaces. This level also features a large eat-in kitchen, multiple living spaces, a full bathroom and a separate laundry room. The home is in need of updates and repairs, it offers great potential for the right buyer and was used as a studio for an Artist for 40 years. Whether you’re looking to renovate for personal use or create a live/work space, this home is a blank canvas in a convenient Catskills location. Just minutes from the Hudson River and the villages of Catskill and Saugerties. Close to shops, restaurants and major highways. Priced to sell and full of possibilities - get creative with this one! - CASH OR REHAB LOANS ONLY PLEASE !

More Property Details

Room Information

Bedroom: 6   Full Bath: 2   Other: 5  

Property Features

Lot Size: 0.5   Lot Sq Ft: 21780   Approx. Int. Sq. Ft.: 2880.00   Porch Description: Yes  

Appliances & Utilities

Heat: Hot Water, Oil, Steam, Other   A/C: None   Water: Private   Sewer: Public Sewer  

Financial

Taxes: $2,409  

Local Area Information

School District: Catskill Elementary School  

Listing Information provided courtesy of KW MidHudson  914-962-0007
Inquire About This Property

(*) - Required fields

  1. Presented by

    Gold Coast Homes & Estates
    • Gold Coast Homes & Estates
    • Licensed Real Estate Broker
    • (631) 283-1000
    •   Contact Us
OneKey™ MLSThe source of the displayed data is either the property owner or public record provided by non-governmental third parties. It is believed to be reliable but not guaranteed. Information Copyright 2020, OneKey™ MLS
© 2025 Gold Coast Homes & Estates. All rights reserved | Login | DMCA Notice | Search Engine powered by eRealtyMedia.com