Properties 23473 of 29569 results« Previous property   Next property »

4 Hemlock Hollow Place, Armonk, NY, 10504 $10,000

Single Family For Rent 4 Beds , 4 Full Bath , 1 Half Bath , 3929 SqFt 

Property Picture
1 of 35
 
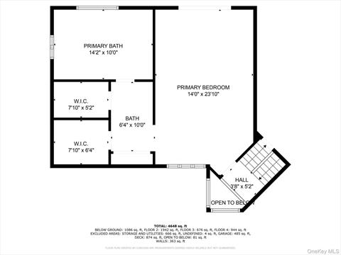
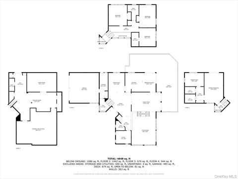
Front of Structure Entry Dining Area Living Room Family Room Kitchen Kitchen Sun Room Office Bathroom Deck Bedroom Bathroom Bathroom Bathroom Bedroom Bedroom Bathroom Office Bathroom Media Room Exercise Room Bathroom Yard Yard Yard Aerial View Aerial View Other Other Floor Plan Floor Plan Floor Plan Floor Plan Floor Plan
 

Details ML#: 921252  

  • Style: Contemporary
  • Year Built: 1986
  • Status:Active

Description

Welcome to this sleek, light-filled Contemporary in Armonk (North Castle), where openness and design converge on 2.21 private acres in the award-winning Byram Hills school district. A circular driveway leads to a dramatic double-height foyer with gleaming marble floors, setting the tone for the sun-drenched interiors that follow.Walls of windows, soaring ceilings, and skylights flood the home with natural light. The expansive formal living room features a striking floor-to-ceiling stone fireplace and flows effortlessly into the spacious family room, dining area, and designer Leicht kitchen. A convenient home office is tucked just off the kitchen. Sliding doors open to a wraparound deck that seamlessly extends the living space outdoors, perfect for entertaining or relaxing in privacy.The private primary suite is a true retreat, complete with a balcony, two oversized walk-in closets, a dedicated shoe closet, and a generous dressing area. The spa-like bath offers a soaking tub and a freestanding shower.Upstairs, you’ll find an en-suite bedroom plus two additional bedrooms that share a hall bath. The walkout lower level offers a vast, welcoming space with designated areas for recreation, fitness, media, and guests, plus a full bath, cedar closet, and abundant storage.With multiple fireplaces, flowing open spaces, and serene outdoor surroundings, this home offers a harmonious blend of contemporary design and everyday comfort.

More Property Details

Animals Policy: Cats OK, Dogs OK

Room Information

Bedroom: 4   Full Bath: 4   Half Bath: 1   Other: 2  

Property Features

ConstructionMaterials: Balcony, Juliet Balcony   Lot Size: 2.21   Lot Sq Ft: 96268   Approx. Int. Sq. Ft.: 3929.00   Garage: Yes   Garage: 2.0   Parking Spaces: Yes   Parking Spaces: 6   Parking Facilities: Attached, Driveway, Garage, Garage Door Opener, Heated Garage   Deck: Yes  

Appliances & Utilities

Heat: Baseboard, Oil   A/C: Central Air   Water: Well   Sewer: Septic Tank  

Financial

Security Deposit: 10000  

Local Area Information

School District: Coman Hill  

Listing Information provided courtesy of Stetson Real Estate  914-381-7173
Inquire About This Property

(*) - Required fields

  1. Presented by

    Gold Coast Homes & Estates
    • Gold Coast Homes & Estates
    • Licensed Real Estate Broker
    • (631) 283-1000
    •   Contact Us
OneKey™ MLSThe source of the displayed data is either the property owner or public record provided by non-governmental third parties. It is believed to be reliable but not guaranteed. Information Copyright 2020, OneKey™ MLS
© 2025 Gold Coast Homes & Estates. All rights reserved | Login | DMCA Notice | Search Engine powered by eRealtyMedia.com