Properties 2425 of 29758 results« Previous property   Next property »

100-15 34th Avenue, Corona, NY, 11368 $2,100,000

Multi Family Commercial  

Property Picture
1 of 35
 
Front of Structure Other Front of Structure Other Aerial View Aerial View Other Bathroom Kitchen Kitchen Laundry Bathroom Bathroom Laundry Other Other Bedroom Kitchen Kitchen Other Kitchen Entry Other Balcony Community Community Community Community Other Other Other Balcony Balcony Other Other
 

Details ML#: 879607  

  • # of Families: 7
  • Sale or Rent:Sale
  • Year Built: 1926
  • Taxes: $25,610
  • Status:Active

Description

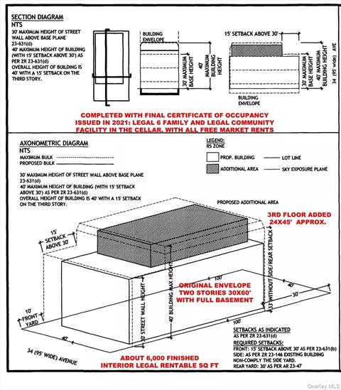
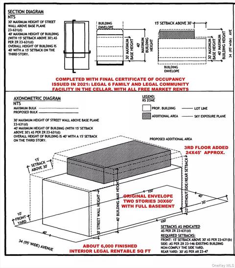
Fully Rebuilt and Renovated in 2021, this solid brick multifamily with community facility and with all market rents (no rent control, no rent stabilization)is located in convenient Corona, close to the no. 7 train, and right on 34th Ave. The property is a Legal 6 family plus Community facility with Three vacancies currently provided. All tenants pay their own heat and utilities. Situated in up an coming area that shows a high concentration of new development, the proximity to the Willets Point Site with all its amenities and features will add to its intrinsic value. The building is in close proximity to all modes of transportation, expressways, subway, express buses, La Guardia Airport, shopping, schools, parks, restaurants and entertainment. It is also in an area with a very healthy rental market. The original 1926 building was gutted out, rebuilt and expanded in 2021 when the new certificate of occupancy was obtained. Currently it features 6 residential units and a legal Community Facility in the Basement, currently rented to a non profit organization). The first floor features two large 1 Bedroom apartments (1L and 1R), featuring their own gas fired circulating hot water heating systems, in unit washer driers, new kitchens and bathrooms, each with access to their private backyard. These two units are large and could be easily converted to Junior 4 Two Bedrooms. Unit 1L is vacant. On the second floor there are two units currently used as two Jr4 two bedrooms, 2L and 2R (with living room and kitchen combos), similar heating and features than the first floor units and with rear facing balconies. Unit 2R is currently vacant. The third floor unit features two smaller one bedroom units with large south facing terraces and similar heating and features than the other 4 units. Unit 3R is currently vacant. There is a private driveway and an attached 1 car garage. As a building substantially rebuilt, it is not rent regulated (no rent control and no rent stabilization). The expenses, available on request, are low and for example, just the real estate taxes are covered by the Community Facility current rent. For comparison purposes and to illustrate the uniqueness of this opportunity it offers a better return than owning two 3 family homes together, being easier to manage and with lower expenses.With approximately 6, 000 sq ft of interior renovated space, and with All legal income this property offers an opportunity to the Investor of vision and a chance to those who want to build Generational Wealth or those seeking a qualified property for a 1031 like-kind Exchange. Special financing available to qualified investors. Shown by appointment only.

More Property Details

Property Features

Lot Size: 0.0918   Lot Sq Ft: 4000   Parking Spaces: Yes   Parking Spaces: 1   Parking Facilities: Garage   Stories: 3  

Appliances & Utilities

Refrigerator: Yes   Stoves: Yes   Heat: Baseboard   A/C: Multi Units   Water: Public   Sewer: Public Sewer  

Financial

Taxes: $25,610  

Listing Information provided courtesy of Xzeller Realty  347-676-0858
Inquire About This Property

(*) - Required fields

  1. Presented by

    Gold Coast Homes & Estates
    • Gold Coast Homes & Estates
    • Licensed Real Estate Broker
    • (631) 283-1000
    •   Contact Us
OneKey™ MLSThe source of the displayed data is either the property owner or public record provided by non-governmental third parties. It is believed to be reliable but not guaranteed. Information Copyright 2020, OneKey™ MLS
© 2025 Gold Coast Homes & Estates. All rights reserved | Login | DMCA Notice | Search Engine powered by eRealtyMedia.com