Properties 24341 of 29987 results« Previous property   Next property »

12 Studio Arcade, Bronxville, NY, 10708 $5,200

Mixed Use Commercial  

Property Picture
1 of 13
 
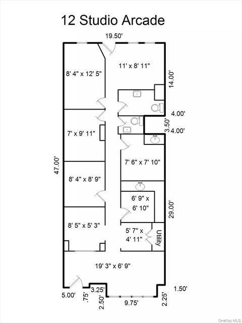
Floor Plan Entry Reception Reception Reception Office Office Office Office Media Room Bathroom Bathroom Front of Structure
 

Details ML#: 904440  

  • Sale or Rent:Rent
  • Status:Active

Description

12 Studio Arcade, Bronxville, New York 10708 Offering +/-1, 000 SF for office space on North Side of Studio Arcade between West Pondfield and the Metro North Train Tracks, just across from Lawrence Hospital.The present configuration is for a medical office. Space has front and rear entrances.BA Zone, allowable uses are: medical, professional or other business offices.$5, 200 per month with 3% increases per year. Increase over base year.To be negotiated.Tenant to pay for all utilities, gas, electric and water. Security deposit two months.Premise comes with 2 unassigned parking spaces in the rear of the building for the tenant. There is ample street parking for patients/customers in front of the building on Studio Arcade itself.This location is very desirable. It is right next to the Bronxville Metro North Train Station on the Southbound side. Lawrence Hospital is directly across the street and has 1, 000+ employees and numerous visitors. There is ample street parking in front of the office.

More Property Details

Property Features

Parking Spaces: Yes   Parking Spaces: 2   Parking Facilities: Tandem  

Appliances & Utilities

Heat: Baseboard   A/C: Central Air   Water: Public   Sewer: Public Sewer  

Local Area Information

Zoning: Medical  

Listing Information provided courtesy of Houlihan & O’Malley R. E. Serv  914-337-7888
Inquire About This Property

(*) - Required fields

  1. Presented by

    Gold Coast Homes & Estates
    • Gold Coast Homes & Estates
    • Licensed Real Estate Broker
    • (631) 283-1000
    •   Contact Us
OneKey™ MLSThe source of the displayed data is either the property owner or public record provided by non-governmental third parties. It is believed to be reliable but not guaranteed. Information Copyright 2020, OneKey™ MLS
© 2025 Gold Coast Homes & Estates. All rights reserved | Login | DMCA Notice | Search Engine powered by eRealtyMedia.com