Properties 24343 of 29987 results« Previous property   Next property »

46 High Street Unit 2, Rye, NY, 10580 $5,500

Multi Family For Rent 3 Beds , 2 Full Bath , 1 Half Bath , 1700 SqFt 

Property Picture
1 of 39
 
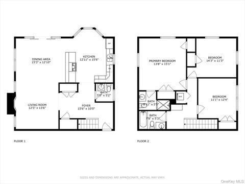
Front of Structure Front of Structure Other Entry Bathroom Kitchen Kitchen Kitchen Kitchen Dining Area Living Room Dining Area Entry Bedroom Bedroom Bedroom Bathroom Bathroom Bedroom Bedroom Office Other Other Laundry Bathroom Other Patio Patio Patio Yard Back of Structure Back of Structure Back of Structure Yard Patio Patio Floor Plan Floor Plan Floor Plan
 

Details ML#: 866744  

  • Style: Colonial
  • Year Built: 2006
  • Status:Active

Description

This rental home offers approximately 1, 700 square feet of living space with three bedrooms and two and a half bathrooms. The spacious backyard features a covered patio and well-maintained landscaping, creating an inviting outdoor living space. The interior boasts an open floor plan with an abundance of natural light. The hardwood floors flow throughout the home, complementing the elegant cabinetry and chandelier in the living area.The primary bedroom provides ample space and includes a spacious bathroom with elegant tiling, ample vanity space, and a spacious shower with tiled walls. The additional bedrooms are also generously sized. The home features a washer and dryer, and the exterior includes a patio, outdoor kitchen, and TV, making it ideal for entertaining. Rental includes 1 parking space in driveway and reimbursement for yearly parking permit in lot across the home. Conveniently located close to downtown and the train, Rye school district, this home offers a versatile and comfortable living experience.

More Property Details

Animals Policy: Breed Restrictions, Call

Room Information

Bedroom: 3   Full Bath: 2   Half Bath: 1   Other: 1  

Property Features

Lot Size: 0.15   Lot Sq Ft: 6534   Approx. Int. Sq. Ft.: 1700.00   Parking Spaces: Yes   Parking Spaces: 1   Parking Facilities: Driveway, Off Street  

Appliances & Utilities

Heat: Forced Air, Natural Gas   A/C: Central Air   Water: Public   Sewer: Public Sewer  

Financial

Security Deposit: 1 month  

Local Area Information

School District: Osborn  

Listing Information provided courtesy of Coldwell Banker Realty  914-967-0059
Inquire About This Property

(*) - Required fields

  1. Presented by

    Gold Coast Homes & Estates
    • Gold Coast Homes & Estates
    • Licensed Real Estate Broker
    • (631) 283-1000
    •   Contact Us
OneKey™ MLSThe source of the displayed data is either the property owner or public record provided by non-governmental third parties. It is believed to be reliable but not guaranteed. Information Copyright 2020, OneKey™ MLS
© 2025 Gold Coast Homes & Estates. All rights reserved | Login | DMCA Notice | Search Engine powered by eRealtyMedia.com