Properties 25559 of 29987 results« Previous property   Next property »

75 Brefni Street, Amityville, NY, 11701 $3,600

Apartment For Rent 2 Beds , 1 Full Bath , 1859 SqFt 

Property Picture
1 of 12
 
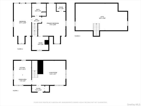
Dining Area Kitchen Other Bedroom Bonus Room Other Bedroom Bathroom Floor Plan Floor Plan Floor Plan Floor Plan
 

Details ML#: 912578  

  • Style: Cape Cod
  • Year Built: 1939
  • Status:Active

Description

Available now. Two bedroom for rent in North Amityville. Features entry foyer with closet space. Living room with mirror on wall. Eat in kitchen with view of front yard. Upstairs you will find one full bathroom with tile, two bedrooms with ample closet space & a walk up attic perfect for storage, hardwood flooring throughout, a backyard area for outdoor entertaining, off street parking for two cars in driveway. Stainless steel appliances will be installed upon a tenant taking occupancy. Apartment has window AC in bedrooms. One small cat & dog is permitted with pet fee. Rental includes all utilities as well as cable.

More Property Details

Animals Policy: Number Limit

Room Information

Bedroom: 2   Full Bath: 1   Other: 2  

Property Features

Lot Size: 0.2303   Lot Sq Ft: 10033   Approx. Int. Sq. Ft.: 1859.00  

Appliances & Utilities

Heat: Natural Gas   A/C: Wall/Window Unit(s)   Water: Public   Sewer: Public Sewer  

Local Area Information

School District: Northwest Elementary School  

Listing Information provided courtesy of Potter Real Estate  631-581-2800
Inquire About This Property

(*) - Required fields

  1. Presented by

    Gold Coast Homes & Estates
    • Gold Coast Homes & Estates
    • Licensed Real Estate Broker
    • (631) 283-1000
    •   Contact Us
OneKey™ MLSThe source of the displayed data is either the property owner or public record provided by non-governmental third parties. It is believed to be reliable but not guaranteed. Information Copyright 2020, OneKey™ MLS
© 2025 Gold Coast Homes & Estates. All rights reserved | Login | DMCA Notice | Search Engine powered by eRealtyMedia.com