256 Route 100 Unit Unit 4, Somers, NY, 10589
                
                    $2,800
                
            
            
                
                    
                
                    Retail 
                    Commercial 
                    
                    
                    
                     
                
            
        
        
        
        
        
        
            
                
                    Details
                ML#: 815338
                 
            
                
                - # of Families: 4
- Sale or Rent:Rent
- Year Built: 1990
- Taxes: $20,289
- Status:Active
 
        
        
        
            
                Description
            
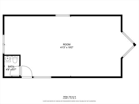
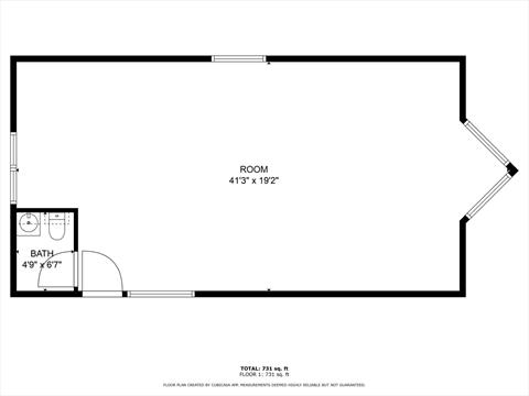
                Stunning retail space available for immediate lease conveniently located off route 100 in Somers, NY. Open floor plan with unique wood tray ceiling feature surrounded by studio lights and a large bay window bringing in tons on natural light. Private bathroom in space. 10, 000+ traffic count with large parking lot.
            
         
        
    
        More Property Details
    
     
    
    
    
        
        
        
        
        
        
        
    
    
    
    
    
        
        
        
        
        
        
        
        
        
    
    
    
    
    
         
        
        
        
        Lot Size: 0.58  
        
        
        
        
        
         
        
        
        
        Parking Spaces: Yes  
        Parking Spaces: 23  
        Parking Facilities: Parking Lot  
        
        
        
        
        
        
        
        
        
        
        
        
        
        
    
        
                
        
        
        
        
        
        
        
        
        
        
        
        
        
        
         
        
        
         
        
         
         
         
        
        
    
    
    
    
    
    
        
        
        
        
        
        
        
        
        
        Heat: Oil,  Forced Air  
        
        
        
        
        
        A/C: Central Air  
        
        
        
        
        Water: Well  
        Sewer: Septic Tank  
        
        
        
        
        
        
        
        
        
        
        
        
        
        
        
        
        
        
        
        
        
        
        
        
    
    
    
    
    
        
                
        
        Taxes: $20,289  
        
        
        
        
        
        
        
        
        
        
        
        
        
        
        
        
        
        
        
        
        
        
        
        
        
        
        
        
        
    
    
    
    
    
        
        
        
        
        Zoning: OLI - Office and Light In  
        
        
        
        
         
        
    
    
    
    
        
        
        
    
    
   
 
        
            Listing Information provided courtesy of 
                Coldwell Banker Realty 
                 914-277-5000