Properties 2920 of 29569 results« Previous property   Next property »

409 Old Canoe Place Rd, Southampton, NY, 11968 $1,895,000

Single Family For Sale 4 Beds , 3 Full Bath , 1 Half Bath , 3007 SqFt 

Property Picture
1 of 32
 
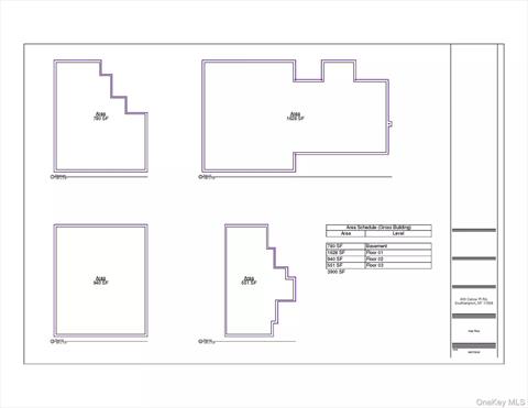
Front of Structure Back of Structure Dining Area Dining Area Kitchen Kitchen Deck Living Room Living Room Living Room Bedroom Bedroom Bathroom Bathroom Bedroom Bedroom Bedroom Exercise Room Bedroom Living Room Bathroom Living Room Dining Area Kitchen Bathroom Pool Pool Pool Pool Pool Other Floor Plan
 

Details ML#: 906324  

  • Style: Traditional
  • Year Built: 1998
  • Taxes: $12,814
  • Status:Active

Description

Introducing a stunning Southampton country traditional home, newly available on the market. Nestled on a serene quiet country lane, this residence offers an unparalleled blend of privacy and convenience. Just moments away from pristine ocean beaches, vibrant Main Street shopping, and world-renowned golf courses, this property is perfectly situated for both relaxation and recreation. This exquisitely renovated home is designed for effortless living, whether as a summer retreat or a year-round residence. It boasts central air conditioning for comfort throughout the seasons. The heart of the home is a custom-built chef’s eat-in kitchen, featuring high-end stainless steel appliances and elegant granite countertops, ideal for culinary enthusiasts. The generous family room, warmed by a charming wood-burning stove, provides a cozy space for gatherings. The beautifully finished lower level includes a media room and a gym, offering versatile spaces for entertainment and fitness. Above, a spacious bonus room serves as an artist’s studio or additional living area, catering to creative pursuits. Accommodating family and guests is seamless with four bedrooms and three and a half bathrooms. Additionally, a separate mother/daughter apartment, complete with a fireplace, provides a private haven for extended family or visitors. Throughout the home, Brazilian cherry floors add a touch of sophistication and warmth. Outdoor living is equally impressive, with a large covered mahogany front porch and inviting brick patios perfect for relaxation or entertaining. The property features an irrigation system to maintain lush landscaping, while the sun drenched swimming pool offers a refreshing escape in a completely private setting. This Southampton gem is a rare find, offering every amenity imaginable in a location that balances tranquility with accessibility. Experience the ultimate in luxury living in this beautifully appointed home.

More Property Details

Room Information

Bedroom: 4   Full Bath: 3   Half Bath: 1  

Property Features

Lot Size: 0.26   Lot Sq Ft: 11326   Approx. Int. Sq. Ft.: 3007.00   Parking Spaces: Yes   Parking Facilities: Driveway  

Appliances & Utilities

Heat: Forced Air, Oil   A/C: Central Air   Water: Public   Sewer: Septic Tank  

Financial

Taxes: $12,814  

Local Area Information

School District: Hampton Bays Elementary School  

Listing Information provided courtesy of Corcoran  516-971-0804
Inquire About This Property

(*) - Required fields

  1. Presented by

    Gold Coast Homes & Estates
    • Gold Coast Homes & Estates
    • Licensed Real Estate Broker
    • (631) 283-1000
    •   Contact Us
OneKey™ MLSThe source of the displayed data is either the property owner or public record provided by non-governmental third parties. It is believed to be reliable but not guaranteed. Information Copyright 2020, OneKey™ MLS
© 2025 Gold Coast Homes & Estates. All rights reserved | Login | DMCA Notice | Search Engine powered by eRealtyMedia.com