Properties 29543 of 29569 results« Previous property   Next property »

31 Walnut Street, New Windsor, NY, 12553 $12

Industrial Commercial  

Property Picture
1 of 10
 
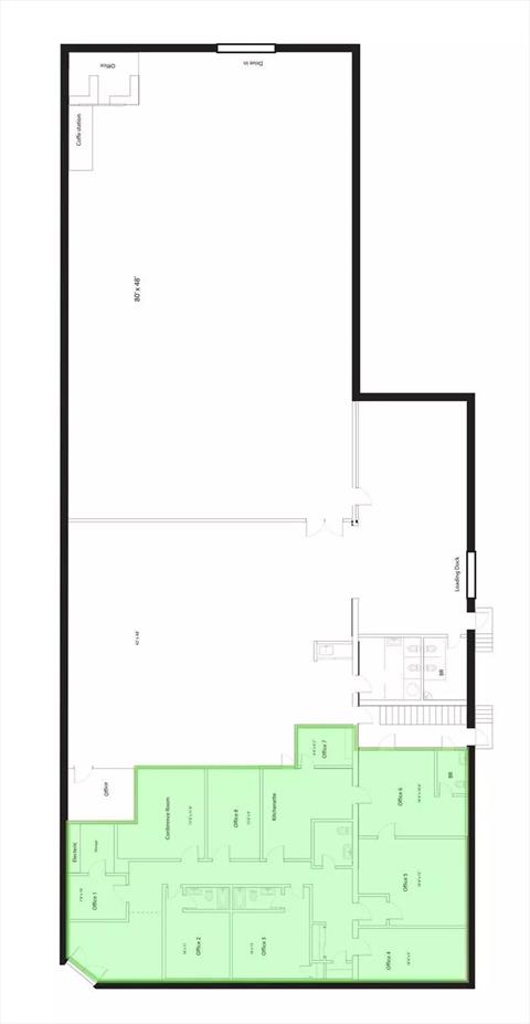
Front of Structure Front of Structure Front of Structure Loading Dock Parking Parking Parking Other Floor Plan Floor Plan
 

Details ML#: 843154  

  • Sale or Rent:Rent
  • Year Built: 1954
  • Taxes: $22,104
  • Status:Active

Description

Discover this spacious 3, 500 sq. ft. warehouse, ideal for a variety of uses! The property is currently configured as office space spread over two floors, but the owner is willing to convert it into a warehouse. It is equipped with heating and central air conditioning, and features a ceiling height of 11-13 ft, making it perfect for all your operational needs. Additionally, there is 4, 700 sq. ft. of extra space available in the building. The expansive 1.3-acre lot offers ample parking and convenient access, including a secondary road entrance at the rear. Located just off Route 32, this property is both accessible and highly visible. Don’t miss out on this fantastic opportunity—schedule your showing today!

More Property Details

Property Features

Lot Size: 1.3   Parking Spaces: Yes   Parking Facilities: Parking Lot   Stories: 2  

Appliances & Utilities

Heat: Natural Gas, Baseboard   A/C: Central Air   Water: Public   Sewer: Public Sewer  

Financial

Taxes: $22,104  

Local Area Information

Zoning: PI-Planned Industrial  

Listing Information provided courtesy of MK Realty Inc  845-782-0205
Inquire About This Property

(*) - Required fields

  1. Presented by

    Gold Coast Homes & Estates
    • Gold Coast Homes & Estates
    • Licensed Real Estate Broker
    • (631) 283-1000
    •   Contact Us
OneKey™ MLSThe source of the displayed data is either the property owner or public record provided by non-governmental third parties. It is believed to be reliable but not guaranteed. Information Copyright 2020, OneKey™ MLS
© 2025 Gold Coast Homes & Estates. All rights reserved | Login | DMCA Notice | Search Engine powered by eRealtyMedia.com