Properties 3202 of 29569 results« Previous property   Next property »

1414 E 28th Street, Brooklyn, NY, 11210 $1,790,000

Multi Family For Sale  

Property Picture
1 of 50
 
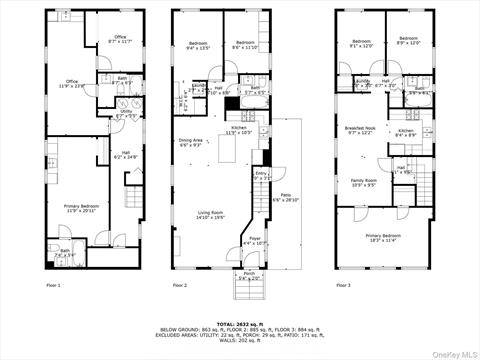
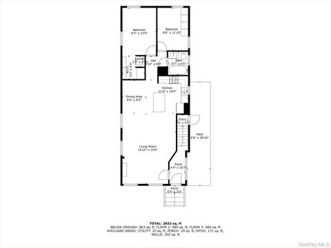
Front of Structure Front of Structure Front of Structure Living Room Living Room Living Room Living Room Living Room Bedroom Office Bedroom Bedroom Bedroom Living Room Living Room Living Room Dining Area Kitchen Kitchen Kitchen Dining Area Dining Area Bedroom Bedroom Other Dining Area Kitchen Dining Area Kitchen Kitchen Dining Area Office Office Office Bedroom Bedroom Kitchen Kitchen Kitchen Garage Back of Structure Other Bathroom Bathroom Bathroom Bathroom Floor Plan Floor Plan Floor Plan Floor Plan
 

Details ML#: 911405  

  • # of Families: 3
  • Year Built: 1940
  • Taxes: $9,691
  • Status:Active

Description

1414 East 28th Street is a masterfully renovated two-family residence that blends modern sophistication with exceptional functionality. Perfectly situated on a quiet, tree-lined block, this home offers expansive living across three levels, making it ideal for both end-users and investors alike.The first-floor apartment welcomes you with a thoughtfully designed layout featuring two generously sized bedrooms and a beautifully appointed bathroom. Upstairs, the second-floor residence boasts three airy bedrooms and a sleek full bathroom, creating a warm and comfortable retreat.The fully finished basement, with its own private entrance, elevates the property’s versatility, offering two additional bedrooms and two full bathrooms—a rare opportunity for multi-generational living, guest accommodations, or a private suite.Outdoor living and convenience are unmatched with a shared driveway, a private garage, and a carport—providing ample parking and storage, an invaluable amenity in Brooklyn.Combining style, space, and practicality, 1414 East 28th Street is more than just a home—it’s a lifestyle opportunity waiting to be embraced.

More Property Details

Property Features

Lot Size: 0.0689   Lot Sq Ft: 3000   Garage: Yes   Garage: 1.0  

Appliances & Utilities

Heat: Other   A/C: Wall/Window Unit(s)   Water: Public   Sewer: Public Sewer  

Financial

Taxes: $9,691  

Listing Information provided courtesy of 5 Boro Realty Corp  855-305-3325
Inquire About This Property

(*) - Required fields

  1. Presented by

    Gold Coast Homes & Estates
    • Gold Coast Homes & Estates
    • Licensed Real Estate Broker
    • (631) 283-1000
    •   Contact Us
OneKey™ MLSThe source of the displayed data is either the property owner or public record provided by non-governmental third parties. It is believed to be reliable but not guaranteed. Information Copyright 2020, OneKey™ MLS
© 2025 Gold Coast Homes & Estates. All rights reserved | Login | DMCA Notice | Search Engine powered by eRealtyMedia.com