Properties 4252 of 29037 results« Previous property   Next property »

255 Congers Rd, New City, NY, 10956 $1,475,000

Single Family For Sale 4 Beds , 2 Full Bath , 1 Half Bath , 3186 SqFt 

Property Picture
1 of 50
 
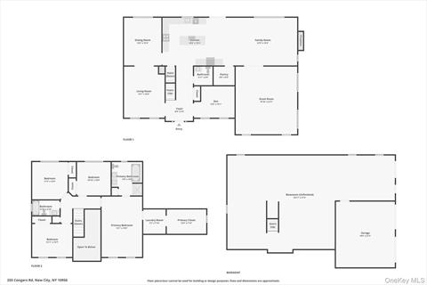
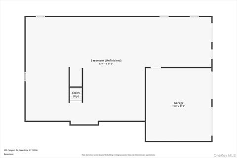
Front of Structure Side of Structure Deck Entry Den Living Room Dining Area Dining Room Kitchen Kitchen Kitchen Kitchen Kitchen Pantry Living Room Living Room Great Room Great Room Great Room Bathroom Entry Primary Bedroom Primary Bedroom Primary Bedroom Closet Closet Primary Bathroom Primary Bathroom Primary Bathroom Bedroom Bedroom Bedroom Bathroom Bedroom Bedroom Bedroom Bedroom Bedroom Bedroom Deck Side of Structure Back of Structure Back of Structure Basement Basement Garage Floor Plan Floor Plan Floor Plan Floor Plan
 

Details ML#: 930906  

  • Style: Colonial
  • Year Built: 2025
  • Status:Active

Description

New construction colonial in the heart of New City, within the Clarkstown North School District. This beautiful home offers timeless design, quality craftsmanship, and a spacious layout perfect for modern living.The first floor features a formal living room and dining room, ideal for entertaining or gatherings. A versatile home office or multipurpose room provides flexibility for today’s lifestyle. The kitchen is both stylish and functional, offering generous quartz countertops, stainless steel appliances including a refrigerator, range, vent hood, and microwave, along with a walk-in pantry and a cozy kitchenette area with sliding doors leading to the Trex deck. The large family room is bright and inviting, centered around a gas fireplace. Completing the main level is an expansive bonus great room filled with natural light and beautiful hardwood floors throughout.Upstairs, you’ll find four spacious bedrooms. The primary suite features tray ceilings, a walk-in closet with custom shelving and a washer/dryer hookup, and a luxurious bathroom with a soaking tub, glass-enclosed shower, double vanity, and custom mirror. Three additional bedrooms all feature hardwood floors and ample closet space.Additional highlights include a two-car garage and a full unfinished walkout basement with sliding doors—offering endless possibilities for future expansion or recreation space. Situated on .75 acres, this property provides both space and convenience, close to shopping, restaurants, parks, and public transportation.

More Property Details

Room Information

Bedroom: 4   Full Bath: 2   Half Bath: 1   Other: 4  

Property Features

Lot Size: 0.75   Lot Sq Ft: 32670   Approx. Int. Sq. Ft.: 3186.00   Garage: Yes   Garage: 2.0   Parking Spaces: Yes   Parking Facilities: Attached, Driveway, Garage   Deck: Yes   Porch Description: Yes  

Appliances & Utilities

Heat: Forced Air, Natural Gas   A/C: Central Air   Water: Public   Sewer: Public Sewer  

Local Area Information

School District: Strawtown Elementary School   Block: 2   Lot: 33  

Listing Information provided courtesy of Howard Hanna Rand Realty  845-429-1500
Inquire About This Property

(*) - Required fields

  1. Presented by

    Gold Coast Homes & Estates
    • Gold Coast Homes & Estates
    • Licensed Real Estate Broker
    • (631) 283-1000
    •   Contact Us
OneKey™ MLSThe source of the displayed data is either the property owner or public record provided by non-governmental third parties. It is believed to be reliable but not guaranteed. Information Copyright 2020, OneKey™ MLS
© 2025 Gold Coast Homes & Estates. All rights reserved | Login | DMCA Notice | Search Engine powered by eRealtyMedia.com