Properties 5143 of 29569 results« Previous property   Next property »

162-49A 13th, Beechhurst, NY, 11357 $1,312,000

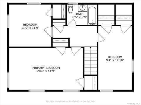
Single Family For Sale 3 Beds , 1 Full Bath , 1 Half Bath , 1558 SqFt 

Property Picture
1 of 43
 
Front of Structure Front of Structure Front of Structure Front of Structure Front of Structure Back of Structure Back of Structure Yard Yard Yard Sitting Room Living Room Living Room Living Room Dining Area Dining Area Dining Area Kitchen Kitchen Bathroom Bedroom Bedroom Other Bedroom Bedroom Other Bedroom Other Bedroom Bathroom Basement Sitting Room Living Room Bar Bar Basement Basement Community Community Floor Plan Floor Plan Floor Plan Floor Plan
 

Details ML#: 923339  

  • Style: Colonial
  • Year Built: 1940
  • Taxes: $9,000
  • Status:Active

Description

Welcome to this beautifully maintained Colonial residence perfectly positioned in the prestigious Robinwood section of Beechhurst. Set on a sunny 50x100 south-facing lot, this home combines classic architecture, thoughtful upgrades, and an unbeatable location in one of northeast Queens’ most beloved neighborhoods.Spanning approximately 1, 558 square feet, plus a finished basement and an unfinished attic, the home offers a warm and practical layout designed for comfortable everyday living. The first floor features a welcoming entry foyer leading into a bright, spacious living room with a traditional wood-burning fireplace—a perfect gathering space for family and guests. An elegant formal dining room flows into a cozy eat-in kitchen, while an enclosed porch provides an inviting transition to the private backyard.Upstairs are three well-proportioned bedrooms and a full bathroom, offering both privacy and convenience. The finished lower level adds exceptional flexibility, complete with a wet bar, laundry area, and abundant storage—ideal as a recreation space, home gym, or entertainment zone.Additional highlights include original oak hardwood floors (presently carpeted on the main level), a one-car attached garage with private driveway, and a reliable forced-air heating system. A comprehensive renovation in 2004 brought modern updates to the home’s roof, electrical, and structural systems, ensuring lasting quality and peace of mind.The backyard is a true highlight—flat, sun-filled, and fully fenced—offering endless potential for outdoor living, gardening, or even future expansion. Whether you envision weekend barbecues, quiet relaxation, or a pool addition, the space is ready to make it yours.Located near major roadways and express bus lines (Q15, Q15A, Q16, Q76), commuting to Manhattan is simple—just about 20 minutes during off-peak hours. Robinwood’s strong community spirit, optional homeowners’ association, and private neighborhood security make it one of the most desirable areas in Beechhurst. Moments from the waterfront, local parks, and the shops and dining of Bay Terrace and Whitestone, this home offers a lifestyle of convenience, comfort, and charm.A rare opportunity to own a timeless Colonial in a location that truly stands the test of time.Please note: Select photos have been virtually staged or digitally enhanced to illustrate potential design possibilities.

More Property Details

Room Information

Bedroom: 3   Full Bath: 1   Half Bath: 1   Other: 4  

Property Features

Lot Size: 0.11   Lot Sq Ft: 5000   Approx. Int. Sq. Ft.: 1558.00   Garage: Yes   Garage: 1.0   Parking Spaces: Yes   Parking Facilities: Driveway, Garage, Private  

Appliances & Utilities

Heat: Natural Gas   A/C: Wall/Window Unit(s)   Water: Public   Sewer: Public Sewer  

Financial

Taxes: $9,000  

Local Area Information

School District: Ps 193 Alfred J Kennedy  

Listing Information provided courtesy of Coldwell Banker American Homes  718-206-1340
Inquire About This Property

(*) - Required fields

  1. Presented by

    Gold Coast Homes & Estates
    • Gold Coast Homes & Estates
    • Licensed Real Estate Broker
    • (631) 283-1000
    •   Contact Us
OneKey™ MLSThe source of the displayed data is either the property owner or public record provided by non-governmental third parties. It is believed to be reliable but not guaranteed. Information Copyright 2020, OneKey™ MLS
© 2025 Gold Coast Homes & Estates. All rights reserved | Login | DMCA Notice | Search Engine powered by eRealtyMedia.com