Properties 5264 of 29569 results« Previous property   Next property »

67-72 78th Street, Middle Village, NY, 11379 $1,299,000

Multi Family For Sale 5 Beds , 3 Full Bath  

Property Picture
1 of 29
 
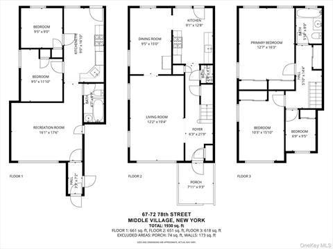
Front of Structure Entry Back of Structure Garage Community Yard Kitchen Kitchen Bedroom Bathroom Other Bathroom Other Other Kitchen Kitchen Other Other Other Bathroom Front of Structure Back of Structure Entry Front of Structure Front of Structure Garage Back of Structure Out Buildings Floor Plan
 

Details ML#: 919373  

  • Style: Colonial
  • # of Families: 2
  • Year Built: 1950
  • Taxes: $10,036
  • Status:Active

Upcoming Open House:

Date:  10/11/2025 - 10/11/2025 12:00 PM - 02:00 PM
Address:  67-72 78th Street, Middle Village, NY, 11379

Open House Note: 

Description

All Brick Corner Property In The Heart Of Middle Village. Officially A 3 Family But Currently Used As A Spacious 2 Family. The Owner’s Duplex Features An Entry Foyer, Living Room, Full Dining Room, Eat-In-Kitchen, And Half Bath On The Main Floor - And 3 Bedrooms And A Full Bath Upstairs. The Ground Level Unit Has 2 Bedrooms, A Living Room, Eat-In -Kitchen, And Full Bath - All Recently Updated. Both Units Have Rear Yard Access, Gas Heat And Cooking, Plus A Front Porch And Detached 1 Car Garage (Parking for 3 cars available) With New Roof And Door. Conveniently Located Near Juniper Valley Park, Shopping And Dining On Metropolitan Avenue, The Shops At Atlas Park, And Access To Q38/Q54/Q67 Bus Lines And The M Train.

More Property Details

Room Information

Bedroom: 5   Full Bath: 3  

Property Features

Lot Size: 0.05   Lot Sq Ft: 2199   Garage: Yes   Garage: 1.0   Parking Spaces: Yes   Parking Spaces: 3   Parking Facilities: Detached, Driveway, Garage, Off Street, Private   Porch Description: Yes  

Appliances & Utilities

Heat: Forced Air, Other   A/C: Multi Units   Water: Public   Sewer: Public Sewer  

Financial

Taxes: $10,036  

Local Area Information

School District: Ps/Is 87 Middle Village   Block: 3775   Lot: 45  

Listing Information provided courtesy of Keller Williams Rlty Landmark  718-475-2700
Inquire About This Property

(*) - Required fields

  1. Presented by

    Gold Coast Homes & Estates
    • Gold Coast Homes & Estates
    • Licensed Real Estate Broker
    • (631) 283-1000
    •   Contact Us
OneKey™ MLSThe source of the displayed data is either the property owner or public record provided by non-governmental third parties. It is believed to be reliable but not guaranteed. Information Copyright 2020, OneKey™ MLS
© 2025 Gold Coast Homes & Estates. All rights reserved | Login | DMCA Notice | Search Engine powered by eRealtyMedia.com