Properties 6029 of 29569 results« Previous property   Next property »

15 Rosewood Lane, Manorville, NY, 11949 $1,199,996

Single Family For Sale 5 Beds , 4 Full Bath , 3915 SqFt 

Property Picture
1 of 46
 
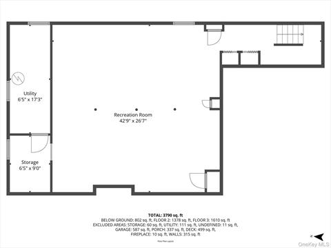
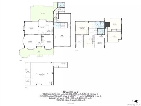
Front of Structure Front of Structure Aerial View Aerial View Front of Structure Deck Deck Other Entry Other Living Room Dining Area Living Room Living Room Dining Area Kitchen Kitchen Kitchen Dining Area Bathroom Entry Office Bedroom Bathroom Bedroom Bedroom Bathroom Bathroom Bathroom Closet Bedroom Living Room Garage Side of Structure Yard Deck Back of Structure Yard Pool Pool Aerial View Aerial View Floor Plan Floor Plan Floor Plan Floor Plan
 

Details ML#: 920642  

  • Style: Colonial
  • Year Built: 1989
  • Taxes: $21,778
  • Status:Active

Description

Location! Location! Welcome to this exquisite 5+ bedroom, 4 bathroom Colonial estate set on a beautifully landscaped property in the highly sought-after community of Manorville. Spanning over 3, 800 square feet of finely appointed living space, this exceptional home includes a 960 sqft legal accessory apartment, offering unparalleled flexibility for multigenerational living or private guest quarters.From the moment you arrive, the stamped concrete European cobblestone driveway and newly designed front porch with gazebo set a tone of timeless elegance. A heated 3-car garage with soaring 10’ ceilings and 9’ doors offers both form and function, perfect for auto enthusiasts or hobbyists.Inside, the home is a showcase of craftsmanship and comfort. The fully renovated kitchen features a center island, custom cabinetry, designer paint and molding, and stainless steel appliances—all flowing seamlessly into warm and inviting living spaces adorned with hardwood floors, recessed lighting, and a cozy fireplace. A thoughtful laundry chute adds convenience to everyday living.The luxurious primary suite is a private sanctuary, offering a new state-of-the-art ensuite bathroom and a spacious walk-in closet. The finished basement expands your options with a versatile flex space, tile flooring, a workbench area, and an egress window, ideal for a gym, home office, or recreation room.Outdoors, escape to your personal resort-style oasis. An elegant T-shaped inground salt water pool with classic Greek-inspired ends is framed by a Cambridge paver pool deck and enclosed by black aluminum wrought iron fencing for both beauty and security. A serene fishpond with a cascading waterfall adds ambiance, while the greenhouse is perfect for year-round gardening. The fully fenced backyard also includes a10’ x 16’ shed, an IPE wood deck, and a Trex front deck with porch swing, creating the ultimate setting for entertaining or quiet relaxation.Additional features include gas heat, central air conditioning (CAC), new windows, newer roof and location within the prestigious Eastport-South Manor School District.Sophisticated, spacious, and truly one-of-a-kind, this Manorville gem offers the luxury lifestyle you’ve been dreaming of—inside and out. Come experience the lifestyle you’ve been waiting for. A rare opportunity not to be missed.

More Property Details

Room Information

Bedroom: 5   Full Bath: 4   Other: 1  

Property Features

ConstructionMaterials: Mailbox, Rain Gutters   Lot Size: 1   Lot Sq Ft: 43560   Approx. Int. Sq. Ft.: 3915.00   Garage: Yes   Garage: 3.0   Parking Spaces: Yes   Parking Facilities: Attached, Driveway, On Street   Porch Description: Yes  

Appliances & Utilities

Heat: Natural Gas   A/C: Central Air   Water: Public   Sewer: Cesspool  

Financial

Taxes: $21,778  

Local Area Information

School District: Dayton Avenue School  

Listing Information provided courtesy of BERKSHIRE HATHAWAY  631-642-6212
Inquire About This Property

(*) - Required fields

  1. Presented by

    Gold Coast Homes & Estates
    • Gold Coast Homes & Estates
    • Licensed Real Estate Broker
    • (631) 283-1000
    •   Contact Us
OneKey™ MLSThe source of the displayed data is either the property owner or public record provided by non-governmental third parties. It is believed to be reliable but not guaranteed. Information Copyright 2020, OneKey™ MLS
© 2025 Gold Coast Homes & Estates. All rights reserved | Login | DMCA Notice | Search Engine powered by eRealtyMedia.com