Properties 6128 of 29563 results« Previous property   Next property »

23 Palm Court, Brooklyn, NY, 11225 $1,199,000

Single Family For Sale 3 Beds , 2 Full Bath , 1200 SqFt 

Property Picture
1 of 24
 
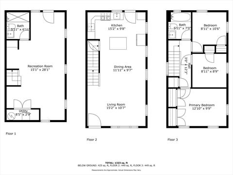
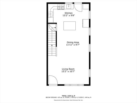
Kitchen Kitchen Kitchen Kitchen Living Room Dining Area Dining Area Bedroom Bedroom Bedroom Bedroom Bedroom Other Basement Living Room Bathroom Bathroom Floor Plan Floor Plan Floor Plan Floor Plan Entry Other Side of Structure
 

Details ML#: 877060  

  • Style: Other
  • Year Built: 1930
  • Taxes: $1,375
  • Status:Active

Description

Welcome to 23 Palm Ct – A Stylishly Renovated Semi-Attached Gem!This beautifully updated 3-bedroom, 2-bathroom home offers the perfect combination of comfort, luxury, and convenience. Nestled on a quiet residential block, this semi-attached property features modern luxury finishes throughout, including a designer kitchen with sleek cabinetry, quartz countertops, and high-end stainless steel appliances.The home boasts a spacious layout with sun-filled rooms, elegant flooring, and spa-inspired bathrooms. A fully finished basement provides additional living or entertainment space, perfect for a home office, gym, or guest suite.Enjoy the ease of a private driveway, and take advantage of the low-maintenance outdoor space ideal for gatherings or relaxing weekends.Move-in ready and meticulously renovated, 23 Palm Ct is a true turnkey opportunity in a sought-after neighborhood.

More Property Details

Room Information

Bedroom: 3   Full Bath: 2   Other: 13  

Property Features

Lot Size: 0.0298   Lot Sq Ft: 1300   Approx. Int. Sq. Ft.: 1200.00   Garage: Yes   Garage: 1.0   Parking Spaces: Yes   Parking Spaces: 1  

Appliances & Utilities

Heat: Other   A/C: Multi Units   Water: Public   Sewer: Public Sewer  

Financial

Taxes: $1,375  

Local Area Information

School District: Brooklyn Arts And Science Elementary  

Listing Information provided courtesy of 5 Boro Realty Corp  855-305-3325
Inquire About This Property

(*) - Required fields

  1. Presented by

    Gold Coast Homes & Estates
    • Gold Coast Homes & Estates
    • Licensed Real Estate Broker
    • (631) 283-1000
    •   Contact Us
OneKey™ MLSThe source of the displayed data is either the property owner or public record provided by non-governmental third parties. It is believed to be reliable but not guaranteed. Information Copyright 2020, OneKey™ MLS
© 2025 Gold Coast Homes & Estates. All rights reserved | Login | DMCA Notice | Search Engine powered by eRealtyMedia.com