Properties 6517 of 29569 results« Previous property   Next property »

139-11 Linden Boulevard, Jamaica, NY, 11436 $1,148,000

Multi Family For Sale 6 Beds , 3 Full Bath  

Property Picture
1 of 23
 
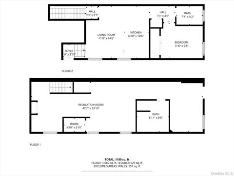
Front of Structure Fence Kitchen Kitchen Dining Area Bathroom Bedroom Basement Bathroom Basement Basement Kitchen Other Bathroom Bedroom Bedroom Bedroom Balcony Balcony Garage Side of Structure Floor Plan Floor Plan
 

Details ML#: 916685  

  • # of Families: 2
  • Year Built: 2025
  • Taxes: $5,000
  • Status:Active

Description

Welcome to this brand-new home at 139-11 Linden Boulevard in Jamaica. Built in 2025, this thoughtfully designed two-family property offers comfort, convenience, and strong investment potential. The first unit can be a 3-bedroom duplex spanning the finished basement and first floor (2 bedrooms can be in the basement). It includes two full bathrooms, a modern kitchen, and open living/dining areas, making it ideal for families seeking both functionality and comfort. The second unit is a 3-bedroom duplex spanning the first and second floors. It features three bedrooms, a full bathroom, a kitchen, and a spacious living/dining area with access to a nice-sized balcony—perfect for al fresco dining or your morning coffee. With split units throughout, a private driveway, and a garage, this home is ideal for both comfortable living and rental potential. Conveniently located near the Van Wyck Expressway, Belt Parkway, JFK International Airport, and public transportation including the Q40, Q51, and QM63 bus lines, this home offers both accessibility and long-term value.

More Property Details

Room Information

Bedroom: 6   Full Bath: 3  

Property Features

Lot Size: 0.0528   Lot Sq Ft: 2300   Garage: Yes   Garage: 1.0   Parking Spaces: Yes   Parking Spaces: 1   Parking Facilities: Driveway, Garage  

Appliances & Utilities

Heat: Natural Gas   A/C: Wall/Window Unit(s)   Water: Public   Sewer: Public Sewer  

Financial

Taxes: $5,000  

Local Area Information

School District#: 121   School District: Ps 121   Block: 11955   Lot: 88  

Listing Information provided courtesy of NY Superior Realty  718-205-7770
Inquire About This Property

(*) - Required fields

  1. Presented by

    Gold Coast Homes & Estates
    • Gold Coast Homes & Estates
    • Licensed Real Estate Broker
    • (631) 283-1000
    •   Contact Us
OneKey™ MLSThe source of the displayed data is either the property owner or public record provided by non-governmental third parties. It is believed to be reliable but not guaranteed. Information Copyright 2020, OneKey™ MLS
© 2025 Gold Coast Homes & Estates. All rights reserved | Login | DMCA Notice | Search Engine powered by eRealtyMedia.com