Properties 6519 of 29569 results« Previous property   Next property »

84-40 63 Rd, Middle Village, NY, 11379 $1,148,000

Single Family For Sale 3 Beds , 3 Full Bath , 1444 SqFt 

Property Picture
1 of 35
 
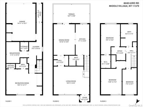
Front of Structure Living Room Dining Area Living Room Dining Area Other Deck Living Room Dining Area Dining Area Dining Area Kitchen Kitchen Bathroom Other Other Bedroom Bedroom Office Bedroom Bedroom Office Bathroom Bathroom Bathroom Basement Office Bathroom Guest Quarters Other Storage Laundry Front of Structure Back of Structure Floor Plan
 

Details ML#: 890582  

  • Style: Colonial
  • Year Built: 1930
  • Taxes: $7,859
  • Status:Active

Description

Perfectly maintained, amazing location on a quiet tree-lined street in Middle Village, minutes’ walk to Juniper Park as well as the commercial hub of Woodhaven Blvd. This house boasts a spacious living room, dining room, open kitchen, with a terrace off of the dining room for added sun exposure. Basement has a renovated garage, plenty of storage, and an extra mother-daughter space with a full bath. Second floor are 3 bedrooms with spacious closets completed to perfection to utilize all space. Whirlpool tub and tiled shower stall make this bathroom SPA-LIKE! Owner is a European classic carpenter with an eye for perfection. Not a creak in the floors, Crown moldings and attention to details are the charm of this home. Custom front door is amazing!!! High school is incorrect,

More Property Details

Room Information

Bedroom: 3   Full Bath: 3  

Property Features

Lot Size: 0.0436   Lot Sq Ft: 1900   Approx. Int. Sq. Ft.: 1444.00   Garage: Yes   Garage: 1.0   Parking Spaces: Yes   Parking Spaces: 2   Deck: Yes  

Appliances & Utilities

Heat: Steam   A/C: Ductless   Water: Public   Sewer: Public Sewer  

Financial

Taxes: $7,859  

Local Area Information

School District: Ps 49 Dorothy Bonawit Kole  

Listing Information provided courtesy of Macaluso Realty  718-894-5000
Inquire About This Property

(*) - Required fields

  1. Presented by

    Gold Coast Homes & Estates
    • Gold Coast Homes & Estates
    • Licensed Real Estate Broker
    • (631) 283-1000
    •   Contact Us
OneKey™ MLSThe source of the displayed data is either the property owner or public record provided by non-governmental third parties. It is believed to be reliable but not guaranteed. Information Copyright 2020, OneKey™ MLS
© 2025 Gold Coast Homes & Estates. All rights reserved | Login | DMCA Notice | Search Engine powered by eRealtyMedia.com