Properties 6889 of 29569 results« Previous property   Next property »

504 Fifth Avenue, Pelham, NY, 10803 $1,098,000

Misc Commercial  

Property Picture
1 of 16
 
 

Details ML#: H6258614  

  • # of Families: 1
  • Sale or Rent:Sale
  • Year Built: 1980
  • Taxes: $14,162
  • Status:Active

Description

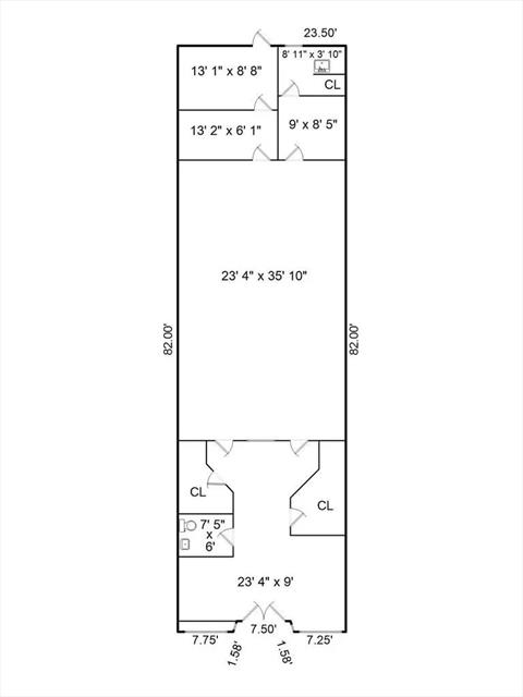
Introducing an Incredible Commercial Space in Vibrant Pelham with the possibility of larger development (As of right to build a 2nd floor. Potential for residential development with Pelham BDFZ law). Located in the heart of one of Pelham’s most sought-after suburban towns, this commercial space offers an outstanding opportunity for entrepreneurs and businesses seeking a prime location that boasts a well-established tenant, this space guarantees a steady flow of foot traffic and a built-in customer base. Key Features: Prime Location: Situated in a bustling suburban town, your business will benefit from the vibrant atmosphere and proximity to a diverse and engaged community. Established Tenant Ample Space: With generous square footage, this commercial space provides the flexibility to accommodate a variety of business types, whether it be a trendy boutique, a thriving restaurant, or a thriving office space. High Foot Traffic: Take advantage of the steady stream of customers already attracted to the area by neighboring businesses, events, and local attractions. Versatile Layout: The open layout allows for easy customization and adaptation to suit your specific business needs, ensuring maximum efficiency and productivity. Surrounding Amenities: Benefit from the proximity to a diverse range of amenities, including popular restaurants, including Pelham’s very own Sergios, cafes, boutique shops, fitness centers, and more, creating a thriving local ecosystem. Supportive Community: Pelham’s vibrant community is known for its strong support of local businesses, providing a welcoming environment for entrepreneurs and fostering growth opportunities. Don’t miss out on this rare opportunity to secure a commercial space in the vibrant town of Pelham, complete with an established tenant and endless potential. Contact us now to arrange a viewing and start envisioning your business thriving in this prime location!

More Property Details

Property Features

Lot Size: 0.0545  

Appliances & Utilities

Heat: Natural Gas, See Remarks   A/C: Central Air, Wall/Window Unit(s)   Water: Public   Sewer: Public Sewer  

Financial

Taxes: $14,162  

Local Area Information

School District: Pelham   Zoning: Commerical  

Listing Information provided courtesy of Capital Realty NY LLC  (917) 842-5552
Inquire About This Property

(*) - Required fields

  1. Presented by

    Gold Coast Homes & Estates
    • Gold Coast Homes & Estates
    • Licensed Real Estate Broker
    • (631) 283-1000
    •   Contact Us
OneKey™ MLSThe source of the displayed data is either the property owner or public record provided by non-governmental third parties. It is believed to be reliable but not guaranteed. Information Copyright 2020, OneKey™ MLS
© 2025 Gold Coast Homes & Estates. All rights reserved | Login | DMCA Notice | Search Engine powered by eRealtyMedia.com