Properties 7012 of 29563 results« Previous property   Next property »

61-31 182nd Street, Fresh Meadows, NY, 11365 $1,050,000

Single Family For Sale 3 Beds , 2 Full Bath , 1 Half Bath , 1056 SqFt 

Property Picture
1 of 14
 
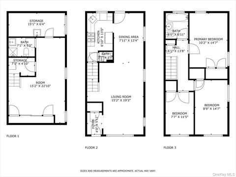
Front of Structure Front of Structure Aerial View Aerial View Aerial View Yard Patio Front of Structure Aerial View Floor Plan Floor Plan Floor Plan Floor Plan Floor Plan
 

Details ML#: 910141  

  • Style: Traditional
  • Year Built: 1950
  • Taxes: $8,329
  • Status:Active

Description

Welcome to 61-31 182nd Street, in lovely Fresh Meadows New YorkThis semi detatched 3-bedroom, 2.5-bathroom home sits on a super sized lot (3350+ sqft lot), offering a extra space and potential, rarely found in the area. The backyard is perfectly hidden for entertainment and guardening, in addition to a private driveway. The home is colonial style with a traditional layout. Foyer, seperate living area, dining room, and seperate kitchen make up the 1st level. All bedrooms are on the second floor. This home also features a full finished basement with a completely seperate basement. Major updates have already been taken care of for you— NEW roof, NEW GAS boiler, and NEW water heater (2 YEARS OLD).Other major upgrades: double pain windows, a built-in oven, a conversion from electric to gas cooking, and updated kitchen and hallway floors ( 7 years).Whether you’re looking for a starter home, an investment, or a property you can truly make your own, this residence offers great value with endless possibilities.Whether you’re looking for a starter home, an investment, or a property you can truly make your own, this residence offers great value with endless possibilities.

More Property Details

Room Information

Bedroom: 3   Full Bath: 2   Half Bath: 1   Other: 3  

Property Features

Lot Size: 0.0562   Lot Sq Ft: 3540   Approx. Int. Sq. Ft.: 1056.00   Parking Spaces: Yes   Parking Facilities: Driveway  

Appliances & Utilities

Heat: Natural Gas   A/C: None   Water: Public   Sewer: Public Sewer  

Financial

Taxes: $8,329  

Local Area Information

School District: Ps 173 Fresh Meadows  

Listing Information provided courtesy of Keller Williams Rlty Landmark  718-475-2700
Inquire About This Property

(*) - Required fields

  1. Presented by

    Gold Coast Homes & Estates
    • Gold Coast Homes & Estates
    • Licensed Real Estate Broker
    • (631) 283-1000
    •   Contact Us
OneKey™ MLSThe source of the displayed data is either the property owner or public record provided by non-governmental third parties. It is believed to be reliable but not guaranteed. Information Copyright 2020, OneKey™ MLS
© 2025 Gold Coast Homes & Estates. All rights reserved | Login | DMCA Notice | Search Engine powered by eRealtyMedia.com