Properties 8269 of 29569 results« Previous property   Next property »

410 Thieriot Avenue, Bronx, NY, 10473 $939,000

Multi Family For Sale 7 Beds , 3 Full Bath  

Property Picture
1 of 17
 
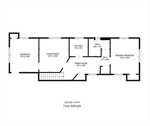
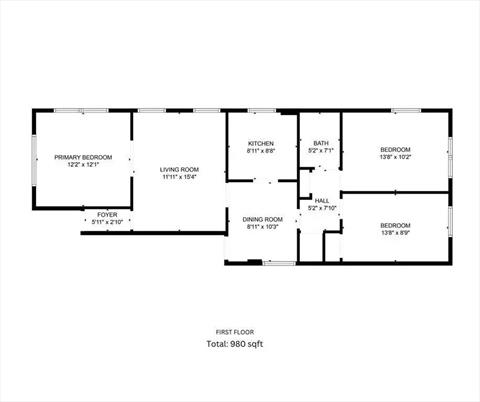
Front of Structure Side of Structure Other Kitchen Kitchen Bedroom Other Other Other Bathroom Floor Plan Floor Plan Aerial View Aerial View Aerial View Other Other
 

Details ML#: 887109  

  • # of Families: 2
  • Year Built: 1930
  • Taxes: $6,785
  • Status:Active

Description

Well Maintained Brick Multi Family on a DOUBLE LOT with Detached Garage. (House 21x55, Lot 50x100) Perfect for a home owner that wants to offset their mortgage payment and a great Investment! - Unite 1 - 3 bedroom, Living room, Dining room, kitchen, bathroom. - Unit 2 - 2 bedroom, Living room, Dining room, NEW Kitchen, Full Bath, new floors. - Ground Level / Basement - Full Size Above Grade, With High Ceilings and 4 rooms, 1 bath, Separate Outside Entrance. - Detached Garage and XL Yard with plenty pf parking for you and all your guests. Located in the quiet Harding Park section of the Bronx, 410 Thieriot Avenue offers both convenience and accessibility. With nearby access to the Bruckner and Cross Bronx Expressways, plus the 6 train and several bus lines, commuting to Manhattan or across the borough is easy. Additionally, the NYC Ferry Soundview terminal, offers service to Manhattan’s East Side and Wall Street in about 30–35?minutes. Local parks, shopping, and daily essentials are all within close reach.This very unique property can be the perfect home, and will make a Great investment, good for 1031 exchange or an end user. Top unit is Vacant and has been recently renovated, unit 1 paying tenants. Private Showings are available with proof of funding. Total Current Estimated Income and Expenses, Gross $96, 000, Expenses $19, 000, Net $77, 000, Cap Rate 8%.

More Property Details

Room Information

Bedroom: 7   Full Bath: 3  

Property Features

Lot Size: 0.1148   Lot Sq Ft: 5000   Garage: Yes   Garage: 1.0   Parking Spaces: Yes   Parking Spaces: 9  

Appliances & Utilities

Heat: Natural Gas, Other   A/C: None   Water: Public   Sewer: Public Sewer  

Financial

Taxes: $6,785  

Local Area Information

Block: 3497   Lot: 10  

Listing Information provided courtesy of Real Broker NY LLC  718-300-5015
Inquire About This Property

(*) - Required fields

  1. Presented by

    Gold Coast Homes & Estates
    • Gold Coast Homes & Estates
    • Licensed Real Estate Broker
    • (631) 283-1000
    •   Contact Us
OneKey™ MLSThe source of the displayed data is either the property owner or public record provided by non-governmental third parties. It is believed to be reliable but not guaranteed. Information Copyright 2020, OneKey™ MLS
© 2025 Gold Coast Homes & Estates. All rights reserved | Login | DMCA Notice | Search Engine powered by eRealtyMedia.com