Properties 9477 of 29987 results« Previous property   Next property »

2 Bedford Ridge Rd, Bedford Hills, NY, 10507 $850,000

Multi Family Commercial  

Property Picture
1 of 26
 
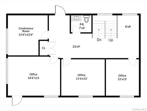
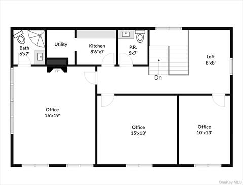
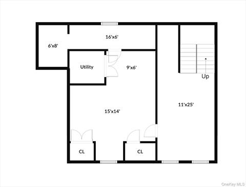
Aerial View Aerial View Side of Structure Entry Entry Other Other Office Office Floor Plan Loft Loft Office Office Kitchen Office Office Floor Plan Basement Basement Floor Plan Back of Structure Lot Lot Aerial View Aerial View
 

Details ML#: 904383  

  • # of Families: 1
  • Sale or Rent:Sale
  • Year Built: 1995
  • Taxes: $21,569
  • Status:Active

Description

Completely renovated 3-story office building in a prime location, modern upgrades in a private, professional setting. Zoned Roadside Business on two combined tax lots, this property presents an outstanding opportunity for an end user or investor seeking a convenient location with exceptional visibility and room for future growth. The flexible layout includes six private offices (three per floor), a dedicated conference room, a kitchen/breakroom, and bathrooms on each level. One private office is equipped with its own full bathroom. The lower level has been refinished with new tile and is fully conditioned. Parking is never an issue with 12+ on-site spaces plus additional land that can accommodate potential expansion or extra parking needs. Recent renovations completed in 2020 include all new recessed lighting, flooring, and commercial carpeting, paint, trim, and upgraded interior doors. This building is fully wired for today’s technology demands, featuring Verizon Fios with Static IP, CAT6 cabling, and Ubiquiti networking equipment supporting PoE switching, cameras, and VoIP phones. Security and access with eight cameras (4-interior / 4-exterior) and front door access control with NFC and PIN entry. Exterior upgrades include a repaved driveway, new retaining walls, improved drainage, and a septic tank that has been replaced within the last 8 years.

More Property Details

Property Features

Lot Size: 0.5   Parking Spaces: Yes   Parking Facilities: Driveway, Off Site, Private   Stories: 3  

Appliances & Utilities

Heat: Natural Gas   A/C: Central Air   Water: Public   Sewer: Septic Tank   Shades and Blinds: Yes  

Financial

Taxes: $21,569  

Local Area Information

School District: Bedford Hills Elementary School   Zoning: Road Side Business  

Listing Information provided courtesy of William Raveis Real Estate  914-273-3074
Inquire About This Property

(*) - Required fields

  1. Presented by

    Gold Coast Homes & Estates
    • Gold Coast Homes & Estates
    • Licensed Real Estate Broker
    • (631) 283-1000
    •   Contact Us
OneKey™ MLSThe source of the displayed data is either the property owner or public record provided by non-governmental third parties. It is believed to be reliable but not guaranteed. Information Copyright 2020, OneKey™ MLS
© 2025 Gold Coast Homes & Estates. All rights reserved | Login | DMCA Notice | Search Engine powered by eRealtyMedia.com