Properties 12497 of 27602 results« Previous property   Next property »

37 Spruce Knolls, Putnam Valley, NY, 10579 $625,000

Single Family For Sale 4 Beds , 2 Full Bath , 1 Half Bath , 2410 SqFt 

Property Picture
1 of 49
 
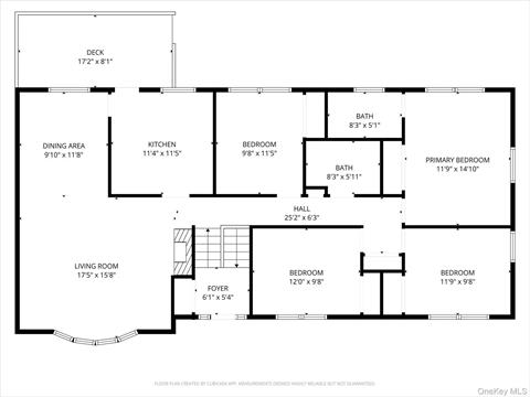
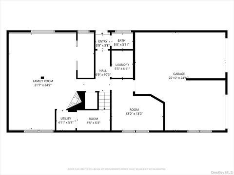
Front of Structure Kitchen Kitchen Living Room Living Room Dining Room Primary Bedroom Primary Bathroom Bathroom Family Room Family Room Family Room Family Room Bathroom Basement Deck Primary Bedroom Primary Bedroom Primary Bedroom Primary Bathroom Bedroom Bedroom Bedroom Other Family Room Family Room Family Room Family Room Family Room Bathroom Laundry Workshop Garage Garage Deck Deck Deck Deck Side of Structure Yard Yard Back of Structure Yard Aerial View Aerial View Aerial View Front of Structure Floor Plan Floor Plan
 

Details ML#: 929700  

  • Style: Raised Ranch
  • Year Built: 1965
  • Taxes: $14,778
  • Status:Active

Description

Come see one of Putnam Valley’s favorite neighborhoods — Spruce Knolls.This inviting 4-bedroom home has been freshly painted, and all hardwood floors refinished to shine bright for its next owners. Enjoy a sun-filled eat-in kitchen with a skylight and a door leading to the back deck overlooking the yard, great for outdoor dining. The dining room offers plenty of space for gatherings, while the living room features a large bay window and a cozy fireplace making it the perfect place to relax or entertain. The primary bedroom includes its own full bath and a large closet with custom built-ins. 3 Additional Bedrooms and Full Bath complete this level. The lower level offers even more living space with brand new flooring, another brick fireplace, built-in shelving and a convenient half Bath. Large storage room with work benches, Laundry Room plus an attached 2 car garage.Set on a beautiful, level yard in a peaceful cul-de-sac neighborhood, this is a home you’ll want to see!Putnam Valley offers a quiet, country lifestyle with easy access to Route 6, Taconic State Parkway, and Metro-North stations located in Peekskill (6 miles), Cold Spring, and Cortlandt. You can commute to NYC while coming home to peace and quiet.

More Property Details

Room Information

Bedroom: 4   Full Bath: 2   Half Bath: 1   Other: 1  

Property Features

Lot Size: 0.9539   Lot Sq Ft: 41550   Approx. Int. Sq. Ft.: 2410.00   Garage: Yes   Garage: 2.0   Parking Spaces: Yes   Parking Facilities: Driveway   Deck: Yes   Porch Description: Yes  

Appliances & Utilities

Washer: Yes   Dryer: Yes   Refrigerator: Yes   Dishwasher: Yes   Stoves: Yes   Heat: Baseboard, Oil   A/C: Wall/Window Unit(s)   Water: Well   Sewer: Septic Tank  

Financial

Taxes: $14,778  

Local Area Information

School District: Putnam Valley Elementary School  

Listing Information provided courtesy of Houlihan Lawrence Inc.  914-962-4900
Inquire About This Property

(*) - Required fields

  1. Presented by

    Gold Coast Homes & Estates
    • Gold Coast Homes & Estates
    • Licensed Real Estate Broker
    • (631) 283-1000
    •   Contact Us
OneKey™ MLSThe source of the displayed data is either the property owner or public record provided by non-governmental third parties. It is believed to be reliable but not guaranteed. Information Copyright 2020, OneKey™ MLS
© 2025 Gold Coast Homes & Estates. All rights reserved | Login | DMCA Notice | Search Engine powered by eRealtyMedia.com