Properties 12828 of 28057 results« Previous property   Next property »

916 Route 216, Poughquag, NY, 12570 $639,000

Single Family For Sale 4 Beds , 3 Full Bath , 2388 SqFt 

Property Picture
1 of 47
 
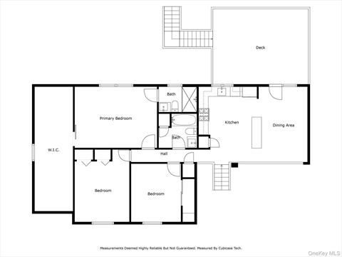
Front of Structure Front of Structure Yard Living Room Living Room Living Room Living Room Living Room Kitchen Kitchen Kitchen Kitchen Dining Area Kitchen Kitchen Kitchen Entry Bedroom Bedroom Closet Bathroom Bathroom Bedroom Bedroom Bedroom Bedroom Basement Bathroom Family Room Family Room Bedroom Laundry Deck Yard Side of Structure Yard Deck Deck Deck Yard Yard Out Buildings Yard Floor Plan Floor Plan Floor Plan View
 

Details ML#: 920726  

  • Style: Split Level
  • Year Built: 1986
  • Taxes: $8,712
  • Status:Active

Description

This 4 bedroom, 3 full bathroom split-level home welcomes you into a spacious and bright living room with high ceilings and plenty of windows. Just a few steps up is a beautiful open 2023 renovated kitchen with quartz counter-tops, stainless steel appliances, and recessed lighting, accompanied by the dining area. Also on this floor is the primary bedroom offering an en-suite bathroom and a generously sized bonus room, currently used as a walk-in closet and dressing room, but flexible enough for your use as a nursery, home office, gym, or quiet sitting area. The possibilities are only limited by your imagination. Two other bedrooms and the main bathroom complete this level. The finished lower level with walk-out to the backyard features the 4th bedroom, the family room, a third bathroom, the laundry room, and access to the two car garage. Spend the summers entertaining on the spacious two-level deck that overlooks the park like yard. The colors of the evening sunset view from the front of the house are not to be missed. This one will not last so make it yours.

More Property Details

Room Information

Bedroom: 4   Full Bath: 3  

Property Features

Lot Size: 1.05   Lot Sq Ft: 45738   Approx. Int. Sq. Ft.: 2388.00   Garage: Yes   Garage: 2.0   Parking Spaces: Yes   Parking Facilities: Driveway, Garage, Garage Door Opener, Private   Deck: Yes  

Appliances & Utilities

Heat: Baseboard, Oil, Other   A/C: Wall/Window Unit(s)   Water: Private   Sewer: Septic Tank  

Financial

Taxes: $8,712  

Local Area Information

School District: Beekman  

Listing Information provided courtesy of Luciano Rios Property Grp, Inc  845-709-6159
Inquire About This Property

(*) - Required fields

  1. Presented by

    Gold Coast Homes & Estates
    • Gold Coast Homes & Estates
    • Licensed Real Estate Broker
    • (631) 283-1000
    •   Contact Us
OneKey™ MLSThe source of the displayed data is either the property owner or public record provided by non-governmental third parties. It is believed to be reliable but not guaranteed. Information Copyright 2020, OneKey™ MLS
© 2025 Gold Coast Homes & Estates. All rights reserved | Login | DMCA Notice | Search Engine powered by eRealtyMedia.com