Properties 1288 of 28252 results« Previous property   Next property »

83 Dartmouth Street, Forest Hills, NY, 11375 $2,999,000

Single Family For Sale 6 Beds , 4 Full Bath , 1 Half Bath , 4735 SqFt 

Property Picture
1 of 49
 
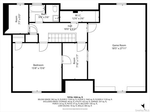
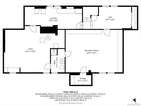
Aerial View Aerial View Front of Structure Other Living Room Living Room Living Room Sitting Room Living Room Living Room Other Dining Area Kitchen Kitchen Kitchen Kitchen Entry Dining Area Bathroom Garage Other Bedroom Bedroom Bedroom Other Bathroom Other Other Bathroom Other Other Bonus Room Bonus Room Bathroom Bonus Room Bonus Room Basement Basement Bathroom Laundry Floor Plan Floor Plan Floor Plan Floor Plan Floor Plan Side of Structure Yard Aerial View Aerial View
 

Details ML#: 928517  

  • Style: Tudor
  • Year Built: 1930
  • Taxes: $26,944
  • Status:Active

Description

Welcome to this exquisite Tudor-style residence nestled in one of Forest Hills’ most desirable neighborhoods. This stately home sits on a generous lot, offering classic architectural details, elegant living spaces, and a rare combination of privacy and convenience just minutes from Manhattan. Interior Features First Floor • Expansive living room with a cozy fireplace • Den with fireplace and convenient side entrance • Formal dining room ideal for entertaining • Kitchen with eat-in area and comfortable sitting space • Powder room • Attached garage with interior access Second Floor • Four spacious bedrooms and two full bathrooms • Primary suite featuring an ensuite bath, large dressing room, and private balcony Third Floor • Additional bedroom with walk-in closet • Full bathroom • Versatile bonus space—ideal for a home gym, office, or playroom • Extra storage room Finished Basement • Full bathroom • Expansive entertainment/recreation area • Laundry and utility rooms • Separate side entry—perfect for guests or extended family Lot Size: 8, 000 sq ft Building Size: 4, 735 sq ft Zoning: R3-1 (potential for legal two-family conversion; please consult your architect for details) Exceptional Location Enjoy the perfect blend of suburban tranquility and city accessibility. Transportation • LIRR (Forest Hills Station): 5-min walk (Ëœ30 min to Manhattan) • Subway Lines (E, F, M, R): 8-min walk (Ëœ20 min to Manhattan) • Bus Lines: Q23 (7 min), Q64/Q60/QM11/QM18/QM4/QM44 (7–15 min) Nearby Amenities • Markets: Trader Joe’s, Target, Austin Organic Market, SS Natural Market, Tokyo Market, Key Food, Forest Hills Greenmarket (10–15 min walk) • Cafes: Martha’s Country Bakery, Forest Cafe, Gregory’s Coffee, Paris Baguette, Starbucks (5–10 min walk) • Restaurants: Mojo, Cabana, Kyuramen, Dirty Pierre’s, Reef, MoCA, Kuku Korean Cuisine (5–10 min walk) • Parks: Kleiner Garden Park (8 min walk) • Gyms & Yoga: Planet Fitness, TITLE Boxing, Club Pilates, Living Yoga, Mimi for Me Yoga (5–10 min walk) Driving Distance • Queens Center Mall & Rego Park Costco – 10 min • Flushing Main St – 15 min • Manhattan – 35 min Summary With its timeless Tudor character, generous layout, and unbeatable Forest Hills location, 83 Dartmouth Street offers the perfect balance of luxury, functionality, and proximity to everything you need. Opportunities like this are rare—schedule your private tour today to experience this exceptional home firsthand.

More Property Details

Room Information

Bedroom: 6   Full Bath: 4   Half Bath: 1  

Property Features

ConstructionMaterials: Balcony   Lot Size: 0.1653   Lot Sq Ft: 8000   Approx. Int. Sq. Ft.: 4735.00   Garage: Yes   Garage: 1.0   Parking Spaces: Yes   Parking Spaces: 2   Parking Facilities: Driveway, Garage  

Appliances & Utilities

Heat: Radiant   A/C: Central Air, Wall/Window Unit(s)   Water: Public   Sewer: Public Sewer  

Financial

Taxes: $26,944  

Local Area Information

School District: Ps 144 Col Jeromus Remsen   Block: 3218   Lot: 33  

Listing Information provided courtesy of Jamie Realty Group  718-886-0668
Inquire About This Property

(*) - Required fields

  1. Presented by

    Gold Coast Homes & Estates
    • Gold Coast Homes & Estates
    • Licensed Real Estate Broker
    • (631) 283-1000
    •   Contact Us
OneKey™ MLSThe source of the displayed data is either the property owner or public record provided by non-governmental third parties. It is believed to be reliable but not guaranteed. Information Copyright 2020, OneKey™ MLS
© 2025 Gold Coast Homes & Estates. All rights reserved | Login | DMCA Notice | Search Engine powered by eRealtyMedia.com