Properties 13730 of 28252 results« Previous property   Next property »

8 Dogwood Hills Rd, Newburgh, NY, 12550 $582,000

Single Family For Sale 4 Beds , 3 Full Bath , 2760 SqFt 

Property Picture
1 of 36
 
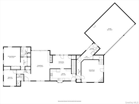
Front of Structure Front of Structure Aerial View Aerial View Bedroom Bathroom Other Bedroom Living Room Dining Area Dining Area Kitchen Living Room Living Room Bedroom Bedroom Bedroom Bedroom Bathroom Bathroom Bathroom Laundry Basement Basement Front of Structure Front of Structure Front of Structure Yard Yard Aerial View Aerial View Floor Plan Floor Plan Floor Plan Floor Plan Aerial View
 

Details ML#: 924187  

  • Style: Ranch
  • Year Built: 1954
  • Taxes: $12,427
  • Status:Active

Description

Welcome to 8 Dogwood Hills Road — on the market for the first time! This beautifully maintained and expansive ranch offers over 2, 700 sq. ft. of finished living space with 4 bedrooms, 3 full baths, and a 3-car garage. Nestled on a quiet cul-de-sac in the Town of Newburgh, the home’s thoughtful layout features two distinct wings, ideal for flexible living arrangements or multi-generational needs.The main wing includes a spacious living room and dining area centered around a charming wood-burning fireplace, along with a primary ensuite and an additional bedroom with a full bath. The kitchen connects seamlessly to the updated second wing, which boasts a formal living room with a gas fireplace, laundry room, and access to the oversized 3-car garage. Head upstairs to find two more bedrooms connected by a stylish Jack-and-Jill bath.Step outside to enjoy the fenced-in backyard with a lovely patio—perfect for outdoor entertaining. A full unfinished basement provides even more usable space for recreation, storage, or hobbies.Conveniently located just minutes from I-84, the Newburgh-Beacon Bridge, the Newburgh Waterfront, shopping, dining, and schools. This home offers the perfect blend of privacy and accessibility.Don’t miss your chance—schedule your private tour today!

More Property Details

Room Information

Bedroom: 4   Full Bath: 3   Other: 4  

Property Features

Lot Size: 0.7829   Lot Sq Ft: 34103   Approx. Int. Sq. Ft.: 2760.00   Garage: Yes   Garage: 3.0   Parking Spaces: Yes   Parking Facilities: Attached, Driveway, Garage, Off Street  

Appliances & Utilities

Heat: Hot Water, Steam   A/C: Ductless   Water: Public   Sewer: Septic Tank  

Financial

Taxes: $12,427  

Local Area Information

School District#: 1   School District: Newburgh  

Listing Information provided courtesy of KW MidHudson  914-962-0007
Inquire About This Property

(*) - Required fields

  1. Presented by

    Gold Coast Homes & Estates
    • Gold Coast Homes & Estates
    • Licensed Real Estate Broker
    • (631) 283-1000
    •   Contact Us
OneKey™ MLSThe source of the displayed data is either the property owner or public record provided by non-governmental third parties. It is believed to be reliable but not guaranteed. Information Copyright 2020, OneKey™ MLS
© 2025 Gold Coast Homes & Estates. All rights reserved | Login | DMCA Notice | Search Engine powered by eRealtyMedia.com