Properties 15425 of 28252 results« Previous property   Next property »

72 Richardson Street Unit 4, Brooklyn, NY, 11211 $469,000

Coop For Sale 2 Beds , 1 Full Bath , 900 SqFt 

Property Picture
1 of 17
 
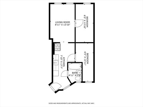
Living Room Other Other Other Bedroom Other Other Other Other Kitchen Kitchen Kitchen Bathroom Entry Entry Floor Plan
 

Details ML#: 857968  

  • Style: Other
  • Year Built: 1928
  • Status:Active

Description

Unique 2-Bedroom Co-op in Prime Williamsburg!Welcome to the heart of Williamsburg, where this bright and airy HDFC co-op offers unbeatable value and location. Just one block from McCarren Park and steps from Williamsburg’s hottest restaurants, boutiques, and cafes, this unit is perfectly positioned for the best of Brooklyn living. With the G & L trains at Lorimer St only three blocks away, commuting is a breeze.This first floor, two-bedroom unit is full of charm, featuring high ceilings, natural light in every room, and a flexible layout that includes a kitchen, two bedrooms, living room, and full bathroom. The apartment offers a great opportunity to customize, with potential to create a spacious one-bedroom layout or renovate into your dream city retreat.- Washing machine in unit- Pet-friendly building- Easy board approval- Generous income restrictions under HDFC guidelines- Monthly maintenance: $922 (includes heat, water, and taxes)A little TLC will go a long way—unlock the full potential of this Williamsburg gem.Incredible Opportunity!

More Property Details

Animals Policy: Call

Room Information

Bedroom: 2   Full Bath: 1   Other: 1  

Property Features

Approx. Int. Sq. Ft.: 900.00   Stories: 5  

Appliances & Utilities

Heat: Oil   A/C: Wall/Window Unit(s)   Water: Public   Sewer: Public Sewer  

Local Area Information

School District: Ps 17 Henry D Woodworth  

Listing Information provided courtesy of Capri Jet Realty Corp  718-388-2188
Inquire About This Property

(*) - Required fields

  1. Presented by

    Gold Coast Homes & Estates
    • Gold Coast Homes & Estates
    • Licensed Real Estate Broker
    • (631) 283-1000
    •   Contact Us
OneKey™ MLSThe source of the displayed data is either the property owner or public record provided by non-governmental third parties. It is believed to be reliable but not guaranteed. Information Copyright 2020, OneKey™ MLS
© 2025 Gold Coast Homes & Estates. All rights reserved | Login | DMCA Notice | Search Engine powered by eRealtyMedia.com