Properties 15751 of 28057 results« Previous property   Next property »

1 Hoyt Rd, Wingdale, NY, 12594 $450,000

Single Family For Sale 2 Beds , 3 Full Bath , 1939 SqFt 

Property Picture
1 of 42
 
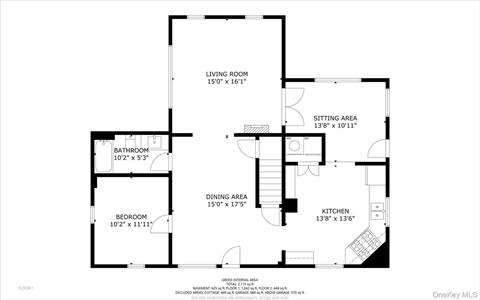
Front of Structure Yard Aerial View Aerial View Other Front of Structure Yard Yard Dining Area Kitchen Kitchen Kitchen Other Dining Area Dining Area Dining Area Living Room Living Room Living Room Living Room Bedroom Other Bathroom Bedroom Bedroom Bathroom Front of Structure Bonus Room Bonus Room Bonus Room Bonus Room Bathroom Bathroom Attic Attic Aerial View Aerial View Floor Plan Floor Plan Floor Plan Floor Plan Floor Plan
 

Details ML#: 923870  

  • Style: Farmhouse
  • Year Built: 1900
  • Taxes: $7,597
  • Status:Active

Description

Set among the rolling hills of Wingdale, New York, near the Sherman, Connecticut border, 1 Hoyt Road offers the quiet beauty of country living and the artistry of a thoughtfully built home. Morning light filters through tall windows, gliding across hardwood floors on the main level and the wide-plank flooring above. Each window frames views of trees and sky, blending the indoors with the surrounding landscape.The farmhouse combines timeless warmth with subtle sophistication. A brick entryway sets the tone for craftsmanship that continues throughout. The kitchen pairs rustic charm with everyday function, featuring exposed brick accents, built-in cabinetry, and a butcher block island that invites gathering and morning coffee. A first-floor bedroom and full bath offer convenience, while the upper bedroom and bath provide a private retreat beneath gentle eaves.Across the lawn, a detached two-car garage leads to a stunning great room, originally designed as an artist’s studio. Sunlight pours through three walls of windows, highlighting cathedral ceilings with exposed beams, a brick fireplace framed in detailed millwork, and granite tile floors that shimmer in the changing light. Built-in bookcases define the entryway with quiet elegance, while a full bath designed for accessibility adds comfort and versatility.Above the garage lies a loft-like open area, unfinished yet full of character, ready to serve as generous storage or a blank canvas for the imagination.The property sits essentially on the Wingdale, NY/Sherman, CT border, an area known for its sweeping natural beauty and multiple protected lands. To the east lies the newly established Grape Hollow State Forest, preserving hundreds of acres of wilderness and ensuring that the surrounding landscape remains untouched. The Appalachian Trail winds nearby, and favorite local destinations such as Bulls Bridge, Candlewood Lake, and Squantz Pond offer endless opportunities for hiking, kayaking, and peaceful weekends by the water.Less than two hours from New York City and close to Metro-North, this home welcomes both full-time residents and weekend retreat seekers who value beauty, privacy, and connection to nature.1 Hoyt Road is more than a home. It is a composition of light, craftsmanship, and calm, surrounded by land that will remain beautifully still.

More Property Details

Room Information

Bedroom: 2   Full Bath: 3   Other: 2  

Property Features

Lot Size: 2.39   Lot Sq Ft: 104108   Approx. Int. Sq. Ft.: 1939.00   Garage: Yes   Garage: 2.0   Parking Spaces: Yes   Parking Facilities: Detached, Driveway, Garage, Garage Door Opener  

Appliances & Utilities

Heat: Oil   A/C: Wall/Window Unit(s)   Water: Well   Sewer: Septic Tank  

Financial

Taxes: $7,597  

Local Area Information

School District: Wingdale Elementary School  

Listing Information provided courtesy of RE/MAX Classic Realty  914-243-5200
Inquire About This Property

(*) - Required fields

  1. Presented by

    Gold Coast Homes & Estates
    • Gold Coast Homes & Estates
    • Licensed Real Estate Broker
    • (631) 283-1000
    •   Contact Us
OneKey™ MLSThe source of the displayed data is either the property owner or public record provided by non-governmental third parties. It is believed to be reliable but not guaranteed. Information Copyright 2020, OneKey™ MLS
© 2025 Gold Coast Homes & Estates. All rights reserved | Login | DMCA Notice | Search Engine powered by eRealtyMedia.com