Properties 16632 of 28252 results« Previous property   Next property »

92 Grand Boulevard, Wyandanch, NY, 11798 $398,888

Single Family For Sale 3 Beds , 1 Full Bath , 1000 SqFt 

Property Picture
1 of 32
 
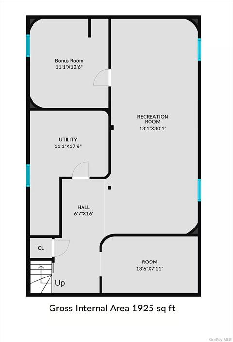
Front of Structure Living Room Front of Structure Entry Entry Living Room Living Room Dining Room Living Room Living Room Living Room Kitchen Kitchen Kitchen Bedroom Bedroom Primary Bedroom Primary Bedroom Bathroom Basement Basement Basement Basement Basement Basement Bonus Room Basement Yard Yard Back of Structure Floor Plan Floor Plan
 

Details ML#: 910954  

  • Style: Ranch
  • Year Built: 1972
  • Taxes: $8,174
  • Status:Active

Description

Welcome to this charming ranch-style home in Wyandanch, perfect for first-time buyers seeking comfort and convenience. Bring your imagination! The main floor features 3 bedrooms, a full bath, a bright living room, a formal dining room, and an eat-in kitchen—ideal for everyday living and entertaining. A finished basement with a family room, and updated electrical system with 150-amp service including a connection for a portable generator provide both functionality and peace of mind. Enjoy a large, flat, private, fenced-in backyard—perfect for gardening, outdoor play, or entertaining. An ample driveway ensures easy parking, while the location just a few blocks from the Wyandanch LIRR station offers quick access to public transportation, major routes, shopping, and dining. This commuter-friendly property is a true find. Don’t miss the opportunity to make it your new home—bring your offer today!

More Property Details

Room Information

Bedroom: 3   Full Bath: 1   Other: 1  

Property Features

ConstructionMaterials: Garden, Mailbox, Rain Gutters   Lot Size: 0.1487   Lot Sq Ft: 6478   Approx. Int. Sq. Ft.: 1000.00   Parking Spaces: Yes   Parking Spaces: 4   Parking Facilities: Driveway, On Street, Private  

Appliances & Utilities

Heat: Baseboard, Oil   A/C: Multi Units, Wall/Window Unit(s)   Water: Public   Sewer: Public Sewer  

Financial

Taxes: $8,174  

Local Area Information

School District: Martin Luther King Elementary School   Block: 2   Lot: 17  

Listing Information provided courtesy of Realty Connect USA L I Inc  631-881-5160
Inquire About This Property

(*) - Required fields

  1. Presented by

    Gold Coast Homes & Estates
    • Gold Coast Homes & Estates
    • Licensed Real Estate Broker
    • (631) 283-1000
    •   Contact Us
OneKey™ MLSThe source of the displayed data is either the property owner or public record provided by non-governmental third parties. It is believed to be reliable but not guaranteed. Information Copyright 2020, OneKey™ MLS
© 2025 Gold Coast Homes & Estates. All rights reserved | Login | DMCA Notice | Search Engine powered by eRealtyMedia.com