Properties 17377 of 27602 results« Previous property   Next property »

525 W 235th Street Unit 6F, Bronx, NY, 10463 $325,000

Coop For Sale 2 Beds , 1 Full Bath , 975 SqFt 

Property Picture
1 of 9
 
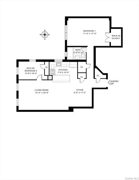
Sitting Room Living Room Kitchen Kitchen Bedroom Office Bathroom Entry Floor Plan
 

Details ML#: 890053  

  • Style: Other
  • Year Built: 1954
  • Status:Active

Description

Just Reduced - Renovated 1BR + Office - Includes 3 Months Paid Maintenance!Welcome to your dream home in the heart of Riverdale! This large one-bedroom with office / small bedroom has been beautifully converted into a 2-bedroom apartment and offers an airy, cottage-like charm with modern updates throughout.Located in the desirable Stuart House, this corner unit boasts two exposures, flooding the space with natural light all day. The open-concept kitchen with an Island has been fully remodeled, perfect for cooking and entertaining. Warm hardwood floors, recessed lighting, and thoughtful details throughout create a cozy yet elegant atmosphere.The split-bedroom layout provides ideal privacy-perfect for guests, a second bedroom, or a quiet home office. Whether you’re working from home for those DND night, this flexible layout fits your lifestyle.Prime Location - Everything at Your Doorstep:1 Block to shopping and restaurants. Parks and public transportation nearby as well.Local buses to the 1, 4, and A trainsexpress buses to midtown East & West and Wall StreetEasy access to the Metro-North Hudson Line, getting you to Grand Central in just 25 minutesDon’t miss this unique opportunity to live in a beautifully renovated, light-filled home in one of Riverdale’s most convenient and vibrant neighborhoods. Location, location, location!Incentive: Seller to prepay three months of maintenance ($1, 065/month).

More Property Details

Animals Policy: Number Limit

Room Information

Bedroom: 2   Full Bath: 1   Other: 1  

Property Features

Approx. Int. Sq. Ft.: 975.00  

Appliances & Utilities

Heat: Radiant, Other   A/C: Wall/Window Unit(s)   Water: Other   Sewer: Other  

Local Area Information

School District: Ps 24 Spuyten Duyvil  

Listing Information provided courtesy of Brown Harris Stevens  718-878-1700
Inquire About This Property

(*) - Required fields

  1. Presented by

    Gold Coast Homes & Estates
    • Gold Coast Homes & Estates
    • Licensed Real Estate Broker
    • (631) 283-1000
    •   Contact Us
OneKey™ MLSThe source of the displayed data is either the property owner or public record provided by non-governmental third parties. It is believed to be reliable but not guaranteed. Information Copyright 2020, OneKey™ MLS
© 2025 Gold Coast Homes & Estates. All rights reserved | Login | DMCA Notice | Search Engine powered by eRealtyMedia.com