Properties 19407 of 28074 results« Previous property   Next property »

35 Rock Street, Kingston, NY, 12401 $249,900

Single Family For Sale 2 Beds , 1 Full Bath , 1092 SqFt 

Property Picture
1 of 29
 
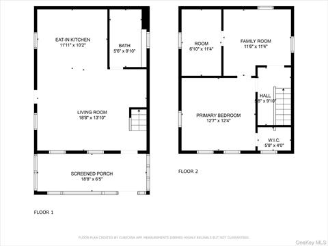
Front of Structure Front of Structure Front of Structure Sun Room Basement Other Sitting Room Basement Kitchen Dining Area Kitchen Office Office Other Office Bedroom Bedroom Bedroom Bathroom Back of Structure Back of Structure Yard Yard Yard Yard Yard Floor Plan Floor Plan Floor Plan
 

Details ML#: 911160  

  • Style: Other
  • Year Built: 1890
  • Taxes: $6,826
  • Status:Active

Description

Bring your vision to this 2-bedroom, 1-bath single-family home on almost 1/4 acre lot in Kingston, NY. Plenty of property to expand!! This property is a true fixer-upper and offers a fantastic opportunity for investors, contractors, or buyers looking for an affordable entry point into the market. With a radiant floor heating system already in place on the first floor, buyers have the freedom to design and install their own modern mechanicals. Whether you’re seeking an investment property or a starter home you can renovate to your taste, this home provides a blank canvas. Located on a quiet street yet close to schools, shops, dining, and commuter routes, the convenience is unmatched. The home was built in 1890 with original charm. This is an excellent Investment opportunity or affordable starter project. Customization potential throughout.Convenient Kingston location near uptown/downtown and new Sojourner Truth State Park.Sold as-is. Cash or rehab financing required.

More Property Details

Room Information

Bedroom: 2   Full Bath: 1   Other: 3  

Property Features

Lot Size: 0.2181   Lot Sq Ft: 9500   Approx. Int. Sq. Ft.: 1092.00   Parking Spaces: Yes   Parking Facilities: On Street  

Appliances & Utilities

Heat: Electric, Radiant   A/C: None   Water: Public   Sewer: Public Sewer  

Financial

Taxes: $6,826  

Local Area Information

School District: John F Kennedy School  

Listing Information provided courtesy of eXp Realty  888-276-0630
Inquire About This Property

(*) - Required fields

  1. Presented by

    Gold Coast Homes & Estates
    • Gold Coast Homes & Estates
    • Licensed Real Estate Broker
    • (631) 283-1000
    •   Contact Us
OneKey™ MLSThe source of the displayed data is either the property owner or public record provided by non-governmental third parties. It is believed to be reliable but not guaranteed. Information Copyright 2020, OneKey™ MLS
© 2025 Gold Coast Homes & Estates. All rights reserved | Login | DMCA Notice | Search Engine powered by eRealtyMedia.com